Trong bối cảnh đất chật người đông tại các khu vực đang phát triển của Hà Nội như Chương Mỹ, việc sở hữu một mảnh đất và dựng lên đó một ngôi nhà vừa vặn về công năng, vừa độc đáo về thẩm mỹ là bài toán không hề dễ. Là người làm nghề, tôi luôn tâm niệm rằng: “Nhà không chỉ để ở, nhà là nơi vỗ về cảm xúc”.
Hôm nay, Techhome xin giới thiệu đến quý khách hàng một “tác phẩm” tâm huyết mà chúng tôi vừa hoàn thiện hồ sơ thiết kế. Đó là công trình thiết kế nhà phố 2 tầng 1 tum mang phong cách hiện đại, sở hữu những đường cong mềm mại đầy tinh tế của gia đình anh Nam tại Phú Nghĩa, Hà Nội.
1. Tổng quan dự án thiết kế nhà phố 2 tầng 1 tum – CĐT Anh Nam
Trước khi đi sâu vào chi tiết, mời quý vị cùng điểm qua những thông số kỹ thuật cơ bản nhất của dự án này. Đây là cơ sở để Techhome đưa ra những giải pháp thiết kế nhà phố 2 tầng 1 tum tối ưu nhất.
-
Chủ đầu tư: Anh Nam
-
Địa điểm xây dựng: Phú Nghĩa – Hà Nội
-
Đơn vị thiết kế: Công ty Cổ phần Kiến trúc và Xây dựng Techhome
-
Diện tích xây dựng: Khoảng 72m2/sàn (Kích thước ~5.2m x 14m)
-
Loại hình: Nhà ở gia đình (Nhà phố hiện đại)
-
Quy mô: 2 tầng + 1 tum
-
Công năng chính:
-
Tầng 1: Phòng khách, Bếp ăn, 1 Phòng ngủ, 1 WC chung.
-
Tầng 2: 3 Phòng ngủ, 2 WC.
-
Tầng Tum: Phòng thờ, Sân phơi.
-
Đây là một đề bài khá “hóc búa” nhưng cũng đầy thú vị: Làm sao để bố trí tới 4 phòng ngủ trong một diện tích nhà phố vừa phải mà vẫn đảm bảo thoáng sáng? Câu trả lời nằm ở giải pháp thiết kế nhà phố 2 tầng 1 tum mà Techhome đã dày công nghiên cứu.

2. Phối cảnh ngoại thất: Vẻ đẹp từ sự tối giản và những đường cong
Ấn tượng đầu tiên khi nhìn vào bản phối cảnh 3D của ngôi nhà này chính là sự trẻ trung, hiện đại nhưng không hề cứng nhắc. Khác với những khối hộp vuông vức thường thấy trong các mẫu thiết kế nhà phố 2 tầng 1 tum truyền thống, ngôi nhà của anh Nam được các KTS Techhome “thổi hồn” bằng những đường bo cong mềm mại tại khu vực ban công và mái che.
Ngôn ngữ kiến trúc hiện đại
Mặt tiền ngôi nhà sử dụng tông màu trắng chủ đạo – màu sắc kinh điển của kiến trúc hiện đại, giúp công trình luôn tươi mới và không bị lỗi thời theo thời gian. Điểm nhấn đắt giá nằm ở hệ thống lan can thép sơn tĩnh điện thanh mảnh kết hợp với các bồn cây xanh được bố trí khéo léo ở ban công các tầng.
Vật liệu kiến tạo nên sự sang trọng
Tầng 1 được ốp đá trang trí màu ghi đậm, tạo cảm giác vững chãi và sạch sẽ, tránh được bụi bẩn hắt lên từ mặt đường. Trong khi đó, trần ban công các tầng trên được ốp giả gỗ (nhựa giả gỗ ngoài trời), kết hợp với hệ thống đèn LED âm trần, tạo nên hiệu ứng ánh sáng lung linh, ấm cúng khi về đêm.
Hệ thống cửa sử dụng nhôm kính Xingfa cao cấp với các vách kính lớn. Điều này không chỉ giúp lấy sáng tối đa cho không gian bên trong mà còn là đặc trưng không thể thiếu của các mẫu thiết kế nhà phố 2 tầng 1 tum theo hướng mở.

3. “Mổ xẻ” mặt bằng công năng: Bài toán diện tích và sự tiện dụng
Sự thành công của một bản thiết kế nhà phố 2 tầng 1 tum không chỉ nằm ở vẻ ngoài hào nhoáng, mà cốt lõi nằm ở sự tiện nghi trong sinh hoạt hàng ngày. Hãy cùng tôi đi vào chi tiết từng tầng nhà anh Nam.
Tầng 1: Sự kết nối không gian mở
Với chiều sâu 14m, chúng tôi không sử dụng các vách ngăn cứng để chia nhỏ không gian.
-
Phòng khách (18.5m2): Được đặt ngay tại sảnh chính, là bộ mặt của ngôi nhà.
-
Bếp + Ăn (15.0m2): Nối liền với phòng khách qua khu vực cầu thang, tạo thành một trục thông gió xuyên suốt.
-
Phòng ngủ 01 (12.5m2): Việc bố trí một phòng ngủ tại tầng 1 là cực kỳ quan trọng trong thiết kế nhà phố 2 tầng 1 tum nếu gia đình có người lớn tuổi, giúp hạn chế việc leo cầu thang.
-
Vệ sinh chung (3.3m2): Đặt kín đáo phía cuối nhà, đảm bảo tế nhị và vệ sinh.

Tầng 2: Không gian nghỉ ngơi riêng tư tối đa
Thách thức lớn nhất của bản thiết kế nhà phố 2 tầng 1 tum này là nhu cầu phòng ngủ lớn. Tại tầng 2, chúng tôi đã khéo léo bố trí tới 3 phòng ngủ:
-
Phòng ngủ 03 (14.5m2): Phòng ngủ lớn phía trước nhà, có ban công thoáng mát và WC khép kín (3.6m2), đảm bảo sự riêng tư tuyệt đối cho gia chủ.
-
Phòng ngủ 02 (10.5m2) và Phòng ngủ 04 (12.5m2): Nằm phía sau, sử dụng chung một WC (3.3m2). Dù diện tích không quá lớn nhưng nhờ cách bố trí cửa sổ hợp lý, các phòng đều không bị bí bách.

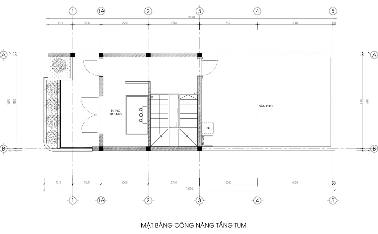
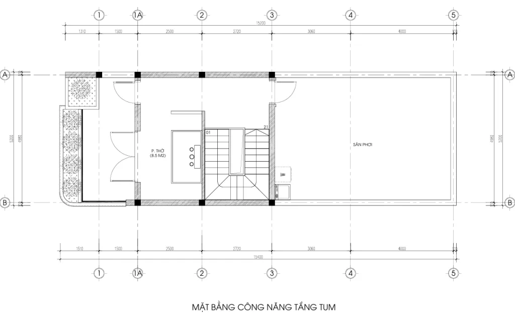
Tầng Tum: Khoảng lặng tâm linh và không gian thở
Tầng tum trong các mẫu thiết kế nhà phố 2 tầng 1 tum thường đóng vai trò là nơi thờ tự và sân phơi.
-
Phòng thờ (8.5m2): Đặt ở vị trí cao nhất, trang trọng nhất, hướng ra phía trước hợp phong thủy.
-
Sân phơi: Rộng rãi phía sau, là nơi giặt giũ phơi phóng, đồng thời có thể tận dụng làm sân vườn nhỏ trồng rau sạch – một xu hướng sống xanh đang rất được ưa chuộng.

4. Giải pháp kỹ thuật và Ánh sáng – Góc nhìn chuyên gia
Là một người làm nghề lâu năm, tôi muốn chia sẻ thêm một vài góc nhìn kỹ thuật trong bản thiết kế nhà phố 2 tầng 1 tum này mà có thể quý vị chưa để ý.
Giếng trời và Cầu thang – “Lá phổi” của ngôi nhà
Nhìn vào mặt bằng mái , quý vị sẽ thấy khu vực cầu thang được thiết kế tấm kính cường lực lấy sáng. Đây chính là giếng trời. Trong thiết kế nhà phố 2 tầng 1 tum, đặc biệt là nhà ống dài 14m, giếng trời là yếu tố sống còn. Nó giúp đối lưu không khí, đưa ánh sáng tự nhiên xuống tận tầng 1, triệt tiêu sự ẩm thấp và tối tăm thường thấy ở khu vực giữa nhà.
Kết cấu và Tường xây
Hồ sơ kỹ thuật cho thấy Techhome sử dụng tường 220mm bao quanh và tường ngăn 110mm. Điều này đảm bảo khả năng cách âm, cách nhiệt tốt cho ngôi nhà, đặc biệt là trong điều kiện khí hậu khắc nghiệt của miền Bắc.
Hệ thống cửa Xingfa
Chi tiết cửa đi (cửa chính 4 cánh) và các hệ cửa sổ đều sử dụng nhôm hệ kết hợp kính an toàn 8.38mm. Đây là lựa chọn tối ưu cho thiết kế nhà phố 2 tầng 1 tum hiện nay: vừa bền, vừa an toàn, lại thẩm mỹ hơn nhiều so với cửa gỗ truyền thống hay cửa sắt.

5. Tại sao mẫu thiết kế nhà phố 2 tầng 1 tum lại là xu hướng 2025?
Không phải ngẫu nhiên mà anh Nam lại chốt phương án thiết kế nhà phố 2 tầng 1 tum. Dưới đây là lý do mà tôi tin rằng mô hình này sẽ tiếp tục “hot” trong năm tới:
-
Tiết kiệm chi phí: So với nhà 3 tầng hay 4 tầng, việc làm tầng tum giúp giảm diện tích sàn xây dựng (do sân phơi thường không tính 100% diện tích), từ đó giảm chi phí nhân công và vật liệu.
-
Chống nóng hiệu quả: Tầng tum đóng vai trò như một lớp đệm cách nhiệt, giúp các phòng ngủ ở tầng 2 mát mẻ hơn vào mùa hè.
-
Thẩm mỹ cân đối: Tỷ lệ hình khối của mẫu thiết kế nhà phố 2 tầng 1 tum thường rất hài hòa, không quá cao lênh khênh, tạo cảm giác ấm cúng.

6. Báo giá thiết kế và thi công nhà phố (Tham khảo)
Rất nhiều khách hàng khi tìm đến Techhome đều thắc mắc: “Để xây được ngôi nhà như anh Nam thì hết bao nhiêu tiền?”. Dưới đây là bảng ước tính chi phí cho mẫu thiết kế nhà phố 2 tầng 1 tum diện tích sàn khoảng 75m2 (Lưu ý: Giá có thể thay đổi tùy thời điểm và vật liệu).
| Hạng mục | Đơn giá (VNĐ) | Thành tiền ước tính (Sơ bộ) |
| 1. Chi phí Thiết kế | 100.000đ/m2 | ~ 22.000.000đ |
| (Bao gồm: Kiến trúc, Kết cấu, Điện nước, 3D) | ||
| 2. Thi công Phần thô | 4.200.000đ/m2 | ~ 950.000.000đ |
| (Móng, Khung cột, Tường xây, Trát, Điện nước âm) | (Tổng sàn ~220m2 cả tum) | |
| 3. Thi công Trọn gói | 7.000.000đ/m2 | ~ 1.550.000.000đ |
| (Chìa khóa trao tay: Cửa, Thiết bị vệ sinh, Gạch ốp lát…) | (Vật liệu loại Khá – Tốt) |
Chi phí trên chưa bao gồm nội thất rời (giường, tủ, bàn ghế sofa…).
Để nhận báo giá chi tiết chính xác nhất cho khu đất của mình, quý khách đừng ngần ngại liên hệ hotline của Techhome. Chúng tôi sẽ khảo sát và lên dự toán miễn phí cho phương án thiết kế nhà phố 2 tầng 1 tum của bạn.

7. Gợi ý chuyên gia: Nâng tầm không gian sống cho nhà phố
Ngoài những gì đã thể hiện trong bản vẽ của nhà anh Nam, với tư cách là một chuyên gia, tôi có thêm vài gợi ý nhỏ để quý vị tham khảo khi áp dụng mẫu thiết kế nhà phố 2 tầng 1 tum này:
-
Sử dụng gạch bông gió: Ở khu vực mặt tiền hoặc hông nhà (nếu thoáng), việc dùng gạch bông gió thay vì tường đặc sẽ giúp ngôi nhà “biết thở”, tạo hiệu ứng nắng rất đẹp.
-
Trồng cây dây leo: Ở khu vực ban công tầng 2 và tầng tum, hãy trồng các loại cây rủ như Cúc tần Ấn Độ. Nó như một tấm rèm thiên nhiên chắn nắng tây và lọc bụi cực tốt.
-
Hệ thống điện thông minh (Smarthome): Chi phí hiện nay đã rất rẻ. Chỉ cần đầu tư thêm khoảng 20-30 triệu, quý vị có thể điều khiển đèn, rèm cửa, bình nóng lạnh qua điện thoại – một trải nghiệm rất đáng giá cho ngôi nhà hiện đại.

8. Vì sao nên chọn Techhome cho ngôi nhà mơ ước?
Giữa hàng trăm đơn vị thiết kế, Techhome tự hào là nơi “Trao niềm tin – Nhận tổ ấm”.
-
Minh bạch: Hồ sơ thiết kế rõ ràng từng con ốc, viên gạch (từ bản vẽ kiến trúc, kết cấu đến điện nước).
-
Tận tâm: KTS và đội ngũ kỹ sư luôn giám sát, hỗ trợ kỹ thuật 24/7 qua hotline 0364.04.2222.
-
Kinh nghiệm: Hàng trăm công trình thiết kế nhà phố 2 tầng 1 tum đã được hiện thực hóa, từ bản vẽ ra thực tế chính xác đến 99%.
Bạn đang ấp ủ một ngôi nhà tương tự?
Đừng để những lo lắng về công năng hay chi phí cản trở giấc mơ an cư của bạn. Hãy để Techhome giúp bạn vẽ nên ngôi nhà hạnh phúc, bắt đầu từ một bản thiết kế nhà phố 2 tầng 1 tum hoàn hảo nhất.
👉 Liên hệ ngay với chúng tôi:
-
Hotline/Zalo: 0364.04.2222 – 0387.60.3333
-
Website: https://nhadeptechhome.vn/
Techhome – Kiến tạo không gian, Vun đắp hạnh phúc!
