Mẫu Nhà Ống 2 Tầng Hiện Đại 164m2 Tại Hưng Yên: Sự Kết Hợp Hoàn Hảo Giữa Thẩm Mỹ Và Công Năng

Trong bối cảnh quỹ đất ngày càng hạn hẹp, việc sở hữu một mẫu nhà ống 2 tầng hiện đại không chỉ đơn thuần là xây dựng một nơi che mưa che nắng, mà còn là khẳng định phong cách sống tinh tế của gia chủ. Hôm nay, Techhome xin giới thiệu đến bạn một dự án đầy tâm huyết mà chúng tôi vừa bàn giao cho gia đình anh Dương tại Quỳnh Phụ, Hưng Yên. Với tổng diện tích sàn 164m2, đây chính là lời giải cho bài toán không gian sống tiện nghi, thoáng đãng trên diện tích đất đặc thù.

1. Câu chuyện kiến trúc: Khi niềm tin gặp gỡ sự chuyên nghiệp

Anh Dương tìm đến Techhome với một mong muốn giản đơn: “Tôi muốn một ngôi nhà nhìn vào là thấy sự trẻ trung, nhưng bên trong phải thật sự ấm cúng và đầy đủ công năng cho cả gia đình”. Sau nhiều lần trao đổi, phương án mẫu nhà ống 2 tầng hiện đại với thiết kế tối giản nhưng đột phá đã chính thức được triển khai.

Tại Techhome, chúng tôi luôn quan niệm rằng mỗi ngôi nhà là một tác phẩm nghệ thuật riêng biệt. Với dự án của anh Dương, sự phối hợp giữa các mảng khối vuông vức và đường bo cong mềm mại ở ban công tầng 2 đã tạo nên một diện mạo không thể trộn lẫn.

Phối cảnh chính diện mẫu nhà ống 2 tầng hiện đại sang trọng tại Quỳnh Phụ, Hưng Yên.
Phối cảnh chính diện mẫu nhà ống 2 tầng hiện đại sang trọng tại Quỳnh Phụ, Hưng Yên.

2. Phân tích ngoại thất: Sự lên ngôi của vật liệu bền vững

Nhìn từ chính diện, mẫu nhà ống 2 tầng hiện đại này thu hút mọi ánh nhìn bởi gam màu trắng chủ đạo, điểm xuyết thêm màu xám của đá ốp và màu nâu ấm của gỗ nhựa trang trí.

  • Tầng 1: Toàn bộ mặt tiền được ốp đá marble vân mây sang trọng, không chỉ giúp bảo vệ tường khỏi ẩm mốc mà còn tạo cảm giác vững chãi.

  • Tầng 2: Điểm nhấn nằm ở phần ban công rộng 4.7m2 với lan can sắt thanh mảnh và hệ thống thanh lam gỗ nhựa chạy dọc, tạo khe thoáng giúp ngôi nhà “thở” tự nhiên.

  • Hệ thống cửa: Chúng tôi sử dụng hệ cửa nhôm kính Xingfa cao cấp, giúp tối đa hóa ánh sáng tự nhiên vào không gian nội thất.

Đây là kiểu thiết kế điển hình cho mẫu nhà ống 2 tầng hiện đại giúp giải quyết triệt để vấn đề thiếu sáng và bí bách của các ngôi nhà lô phố.

Góc nghiêng mẫu nhà ống 2 tầng hiện đại

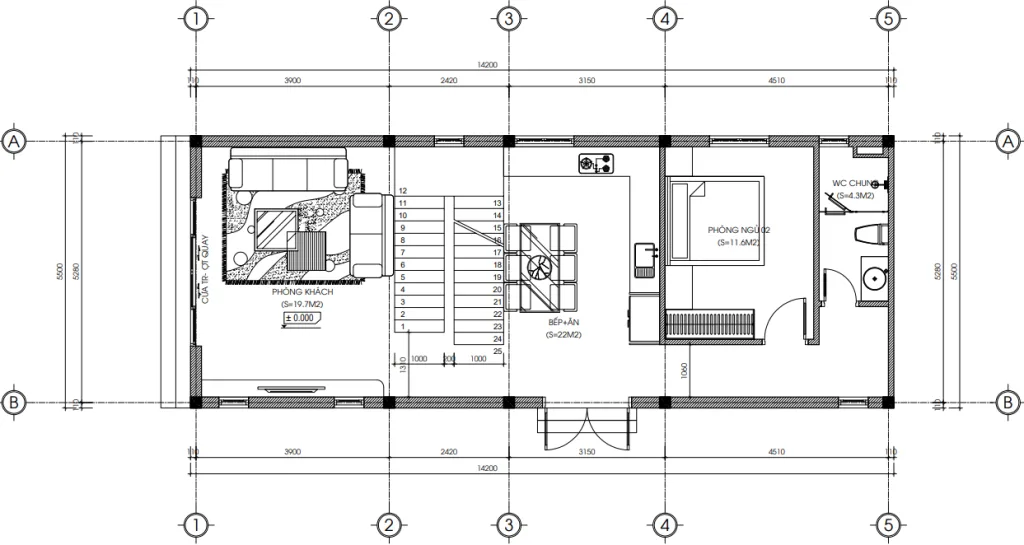
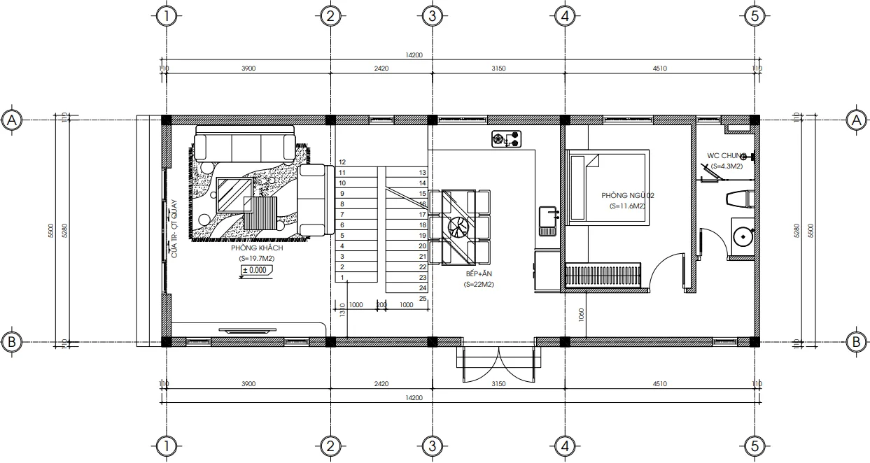
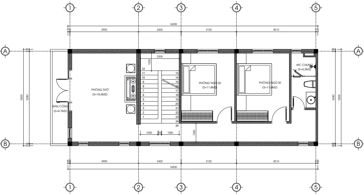
3. Giải pháp công năng tầng 1: Không gian sinh hoạt chung ấm cúng

Với diện tích thiết kế tầng 1 là 81m2, đội ngũ kiến trúc sư của Techhome đã khéo léo sắp xếp các phòng chức năng một cách khoa học:

  • Phòng khách (19.7m2): Nằm ngay sau sảnh chính, là bộ mặt của ngôi nhà với tầm nhìn thoáng đạt.

  • Phòng bếp & ăn (22m2): Được ngăn cách tinh tế với phòng khách bởi cầu thang, tạo sự riêng tư cần thiết nhưng vẫn đảm bảo tính kết nối.

  • Phòng ngủ 01 (11.6m2): Dành cho người lớn tuổi, hạn chế việc di chuyển cầu thang.

  • Phòng WC chung (4.3m2): Bố trí kín đáo cuối nhà, thuận tiện cho sinh hoạt.

Đặc biệt, cầu thang được thiết kế với 23 bậc, chiều cao mỗi bậc 169mm. Theo phong thủy, con số 23 rơi vào cung “Sinh”, mang lại tài lộc và sức khỏe cho gia chủ. Đây là chi tiết nhỏ nhưng thể hiện sự tận tâm của chúng tôi trong từng mẫu nhà ống 2 tầng hiện đại.

Bản vẽ bố trí công năng tầng 1 diện tích 81m2 mẫu nhà ống 2 tầng hiện đại của anh Dương.
Bản vẽ bố trí công năng tầng 1 diện tích 81m2 mẫu nhà ống 2 tầng hiện đại của anh Dương.

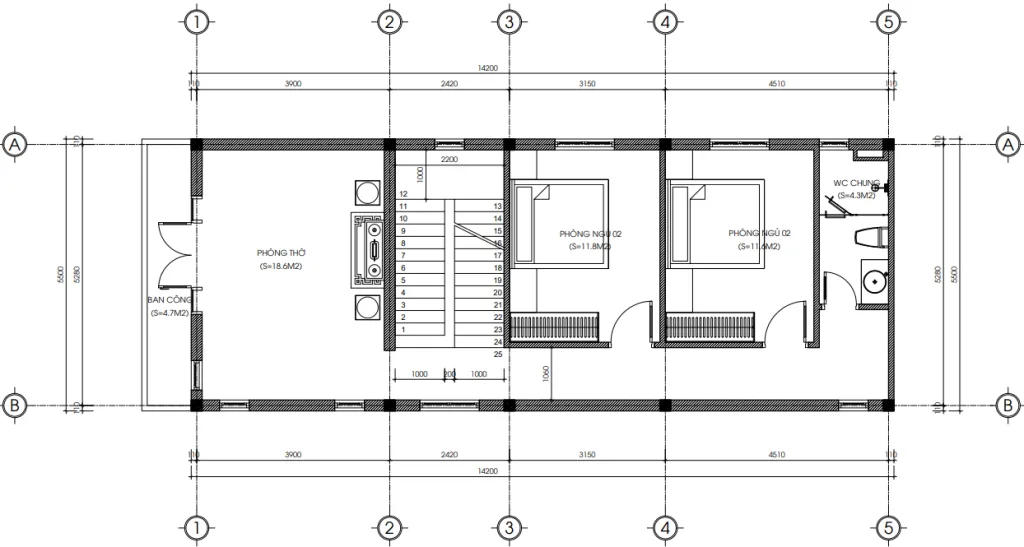
4. Giải pháp công năng tầng 2: Chốn riêng tư yên bình

Tầng 2 có diện tích 83m2, tập trung vào các không gian nghỉ ngơi và tâm linh:

  • Phòng thờ (18.6m2): Vị trí trang trọng nhất hướng ra mặt tiền, có ban công riêng 4.7m2.

  • 2 Phòng ngủ (11.8m2 & 11.6m2): Diện tích vừa vặn, thiết kế cửa sổ lớn để đón gió trời.

  • Phòng WC chung (4.3m2): Đồng trục với tầng 1 để tiết kiệm chi phí đường ống kỹ thuật.

Cách bố trí này biến ngôi nhà thành một mẫu nhà ống 2 tầng hiện đại lý tưởng cho gia đình 2-3 thế hệ cùng chung sống.

Bản vẽ bố trí công năng tầng 2 diện tích 83m2 mẫu nhà ống 2 tầng hiện đại của anh Dương.
Bản vẽ bố trí công năng tầng 2 diện tích 83m2 mẫu nhà ống 2 tầng hiện đại của anh Dương.

5. Tại sao bạn nên chọn mẫu nhà ống 2 tầng hiện đại tại Techhome?

Việc xây nhà là việc hệ trọng cả đời. Tại Hưng Yên, Techhome tự hào là đơn vị tư vấn và thiết kế uy tín. Khi lựa chọn chúng tôi, bạn nhận được:

  1. Hồ sơ thiết kế chi tiết, rõ ràng từng milimet.

  2. Hỗ trợ tư vấn kỹ thuật 24/7 qua Hotline: 0364042222 – 0387603333.

  3. Giải pháp tối ưu hóa chi phí dựa trên vật liệu thực tế tại địa phương.

Dù bạn đang tìm kiếm một mẫu nhà ống 2 tầng hiện đại tối giản hay sang trọng, chúng tôi luôn sẵn sàng lắng nghe và hiện thực hóa ý tưởng của bạn.

Góc nghiêng mẫu nhà ống 2 tầng hiện đại

6. Góc chuyên gia: Lời khuyên để có mẫu nhà ống 2 tầng hiện đại hoàn hảo

Dưới góc độ một kiến trúc sư lâu năm, tôi có vài gợi ý nhỏ để ngôi nhà của bạn không chỉ đẹp mà còn bền vững:

  • Ưu tiên thông gió tự nhiên: Đừng cố xây kín mít. Hãy dành một khoảng nhỏ làm giếng trời hoặc sân sau. Ngôi nhà của anh Dương tại Hưng Yên sở hữu hệ thống cửa sổ bên hông rất thoáng.

  • Lựa chọn màu sắc: Với mẫu nhà ống 2 tầng hiện đại, hãy ưu tiên các tông màu trung tính để tạo cảm giác rộng rãi hơn.

  • Chống nóng mái: Dự án này sử dụng mái tôn chống nóng kết hợp hệ thống bồn nước và năng lượng mặt trời phía trên, giúp tiết kiệm điện năng đáng kể vào mùa hè.

Toàn cảnh từ trên cao mẫu nhà ống 2 tầng hiện đại với hệ mái tôn chống nóng và bồn năng lượng mặt trời.
Toàn cảnh từ trên cao mẫu nhà ống 2 tầng hiện đại với hệ mái tôn chống nóng và bồn năng lượng mặt trời.

7. Báo giá thi công mẫu nhà ống 2 tầng hiện đại (Cập nhật 2026)

Dưới đây là bảng dự toán kinh phí dự kiến cho một ngôi nhà có quy mô tương tự dự án anh Dương (164m2) tại khu vực miền Bắc:

Hạng mục Đơn giá dự kiến (VNĐ/m2) Thành tiền (VNĐ)
Gói thi công phần thô (Vật tư + Nhân công) 3.800.000 – 4.200.000 ~ 650.000.000
Gói hoàn thiện cơ bản (Sơn, gạch, thiết bị vệ sinh) 2.500.000 – 3.000.000 ~ 450.000.000
Hệ thống cửa & Lan can (Xingfa, Kính cường lực) Tùy chọn khối lượng ~ 120.000.000
Nội thất cơ bản (Tủ bếp, giường, tủ quần áo) Theo nhu cầu ~ 250.000.000
Chìa khóa trao tay ~ 7.000.000 – 8.000.000 ~ 1.200.000.000 – 1.400.000.000

Lưu ý: Đây chỉ là mức chi phí ước tính. Để nhận được báo giá chính xác và chi tiết nhất cho công trình của bạn, vui lòng liên hệ trực tiếp với chúng tôi. Hoặc để tìm hiểu rõ hơn về tiêu chuẩn vật liệu xây dựng và các yếu tố ảnh hưởng đến chi phí, bạn có thể tham khảo thêm tại các bài viết chuyên sâu về vật liệu xây dựng cao cấp trên Wikipedia.

Tổng thể mặt sau mẫu nhà ống 2 tầng hiện đại


8. Kết luận

Mẫu nhà ống 2 tầng hiện đại của anh Dương tại Quỳnh Phụ, Hưng Yên là minh chứng cho việc không cần diện tích đất quá lớn, chỉ cần một đơn vị thiết kế có tâm, bạn hoàn toàn có thể sở hữu một tổ ấm trong mơ. Với tổng diện tích 164m2 và chi phí đầu tư hợp lý, đây chắc chắn là hình mẫu lý tưởng để bạn tham khảo cho dự định xây nhà sắp tới.

Đừng ngần ngại truy cập https://nhadeptechhome.vn/ để xem thêm hàng trăm dự án thực tế khác. Chúng tôi tin rằng, mỗi khách hàng xứng đáng có một không gian sống tốt đẹp hơn.

Nếu bạn đang băn khoăn về chi phí hay cần tư vấn về phong thủy cho mẫu nhà ống 2 tầng hiện đại, hãy để lại bình luận hoặc gọi ngay cho chúng tôi nhé!

Techhome – Xây giá trị, dựng niềm tin.

CÔNG TY CỔ PHẦN KIẾN TRÚC VÀ XÂY DỰNG TECHHOME

☎️ Hotline: 036.273.2222

📍 Địa chỉ: B1.1 LK18 Ô 3 – KĐT Thanh Hà – Cienco 5 – Thanh Oai- Hà Nội.

Để lại một bình luận

Email của bạn sẽ không được hiển thị công khai. Các trường bắt buộc được đánh dấu *

    Vui lòng nhấn nút YÊU CẦU TƯ VẤN và đợi 1 - 2 giây đến khi thấy thông báo thành công

    YÊU CẦU TƯ VẤN