Bạn đang sở hữu một mảnh đất rộng khoảng 7m ngang và muốn xây dựng một tổ ấm vừa hiện đại, vừa tối ưu công năng cho gia đình 2-3 thế hệ? Mẫu nhà 2 tầng 4 phòng ngủ chính là “chìa khóa” giải quyết bài toán này. Hôm nay, hãy cùng Techhome tham quan chi tiết công trình mà chúng tôi vừa bàn giao hồ sơ thiết kế cho gia đình anh Đức tại Yên Bái. Đây không chỉ là một bản vẽ, mà là một không gian sống được tính toán kỹ lưỡng từng mét vuông.
1. Cái nhìn tổng quan về kiến trúc ngoại thất hiện đại
Nhìn vào phối cảnh 3D của mẫu nhà 2 tầng 4 phòng ngủ này, điểm ấn tượng đầu tiên chính là sự tối giản nhưng cực kỳ sang trọng. Không sa đà vào các chi tiết phào chỉ rườm rà, Techhome tập trung vào các khối hình học vuông vức, khỏe khoắn.
Sự kết hợp màu sắc và vật liệu
Chúng tôi sử dụng tone màu trắng chủ đạo kết hợp với các mảng tường ốp đá granite màu xám đậm ở tầng 1. Điều này không chỉ tạo cảm giác vững chãi cho ngôi nhà mà còn giúp phần chân tường luôn sạch sẽ, tránh ẩm mốc – một vấn đề thường gặp tại khí hậu miền Bắc.
Phần trần ban công tầng 2 được nhấn nhá bằng hệ nan gỗ nhựa composite màu nâu ấm, đi kèm hệ đèn led âm trần. Sự kết hợp này khiến ngôi nhà trở nên lung linh và ấm áp hơn vào buổi tối. Đây là cách thiết kế rất phổ biến trong các mẫu nhà 2 tầng 4 phòng ngủ hiện đại ngày nay.
Hệ thống cửa kính lấy sáng tự nhiên
Toàn bộ hệ thống cửa đều sử dụng nhôm hệ Xingfa cao cấp kết hợp kính cường lực. Với mặt tiền rộng 6.9m, việc sử dụng cửa kính lớn giúp đón trọn ánh sáng tự nhiên, giúp không gian bên trong luôn thông thoáng, giảm thiểu chi phí điện năng chiếu sáng ban ngày.

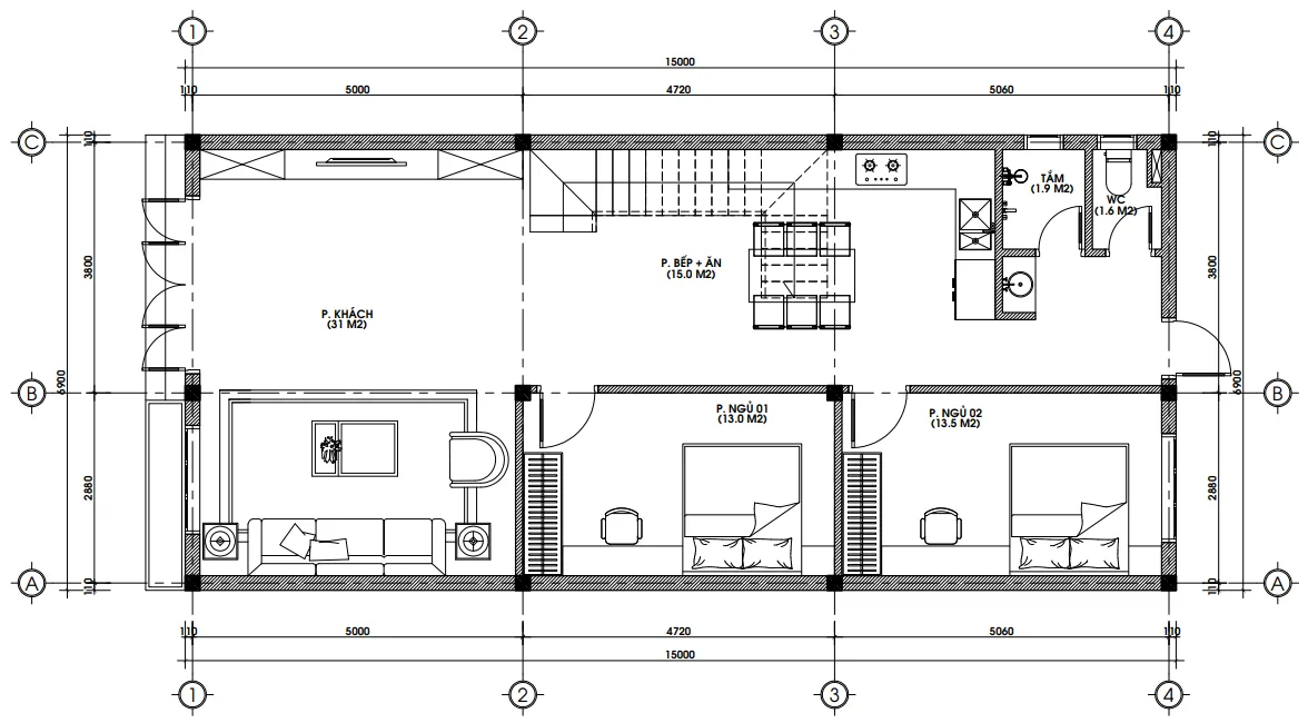
2. Phân tích mặt bằng công năng: Tối ưu đến từng milimet
Một mẫu nhà 2 tầng 4 phòng ngủ đẹp thôi chưa đủ, quan trọng nhất vẫn là sự tiện nghi khi sử dụng. Với diện tích sàn 100m2/tầng, các kiến trúc sư của Techhome đã phân bổ không gian cực kỳ khoa học.
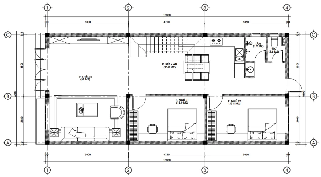
Tầng 1: Không gian sinh hoạt chung và nghỉ ngơi cho người già
Mặt bằng tầng 1 (diện tích 100m2) bao gồm:
-
Phòng khách (31m2): Rất rộng rãi, đủ sức chứa cho những buổi tụ họp gia đình lớn.
-
Phòng bếp + ăn (15m2): Được thiết kế liên thông với phòng khách tạo cảm giác không gian mở, cực kỳ thoáng đãng.
-
2 Phòng ngủ (13m2 & 13.5m2): Việc đặt 2 phòng ngủ ở tầng 1 là tính toán rất thực tế của anh Đức dành cho bố mẹ già, giúp ông bà thuận tiện đi lại, không phải leo cầu thang.
-
Khu vệ sinh tách biệt: Nhà tắm (1.9m2) và WC (1.6m2) được thiết kế riêng biệt, giúp tối ưu thời gian sử dụng khi nhà đông người.

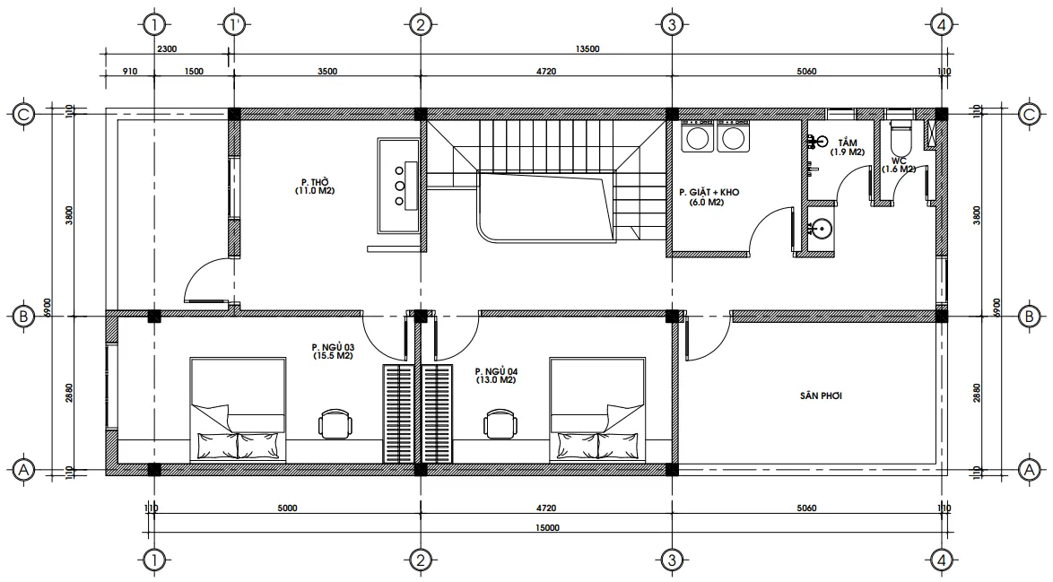
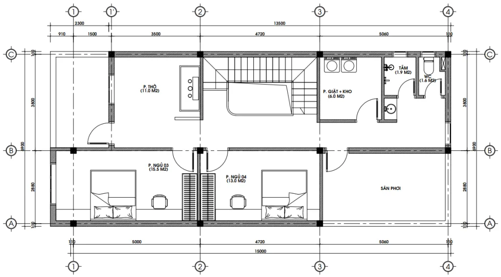
Tầng 2: Không gian riêng tư và tâm linh
Lên đến tầng 2 (diện tích 100m2), không gian được chia nhỏ để phục vụ nhu cầu riêng tư của các thành viên trẻ:
-
Phòng thờ (11m2): Đặt ở vị trí trang trọng nhất phía trước nhà, có hướng nhìn ra ban công thoáng đãng.
-
2 Phòng ngủ lớn (15.5m2 & 13m2): Trong đó phòng ngủ 03 là phòng master với diện tích lớn, view cửa sổ rộng.
-
Khu giặt + Kho (6m2): Một chi tiết nhỏ nhưng vô cùng cần thiết để nhà cửa luôn gọn gàng.
-
Sân phơi phía sau: Đảm bảo tính thẩm mỹ cho mặt tiền mà vẫn đáp ứng nhu cầu phơi phóng.
Rõ ràng, mẫu nhà 2 tầng 4 phòng ngủ này đã giải quyết triệt để nhu cầu của một gia đình 5-6 người một cách thoải mái nhất.

3. Tại sao “Mẫu nhà 2 tầng 4 phòng ngủ” lại là xu hướng tại Yên Bái?
Yên Bái là khu vực có địa hình và khí hậu khá đặc trưng. Việc lựa chọn xây dựng nhà 2 tầng giúp tiết kiệm chi phí móng và mái so với nhà cấp 4 diện tích lớn, đồng thời tạo ra vị thế cao ráo cho ngôi nhà.
Khi thiết kế mẫu nhà 2 tầng 4 phòng ngủ, Techhome đã tư vấn anh Đức sử dụng hệ mái tôn chống nóng cao cấp. Như bạn thấy trong bản vẽ mái, hệ mái tôn này không chỉ thoát nước nhanh mà còn có chi phí rẻ hơn nhiều so với mái Thái hay mái Nhật, phù hợp với ngân sách đầu tư mà vẫn đảm bảo độ bền.

4. Bảng báo giá thi công trọn gói dự kiến (Cập nhật 2026)
Để bạn dễ dàng hình dung về mức đầu tư cho mẫu nhà 2 tầng 4 phòng ngủ diện tích 100m2/sàn, Techhome xin đưa ra bảng dự toán tham khảo tại khu vực Yên Bái:
| Hạng mục | Đơn giá (VNĐ/m2) | Tổng chi phí dự kiến |
| Xây dựng phần thô | 3.800.000 – 4.200.000 | ~ 800.000.000 |
| Thi công hoàn thiện (Gói phổ thông) | 6.000.000 – 6.800.000 | ~ 1.300.000.000 |
| Thi công hoàn thiện (Gói cao cấp) | 7.000.000 – 8.500.000 | ~ 1.500.000.000 |
Lưu ý: Đây chỉ là mức chi phí ước tính. Để nhận được báo giá chính xác và chi tiết nhất cho công trình của bạn, vui lòng liên hệ trực tiếp với chúng tôi. Hoặc để tìm hiểu rõ hơn về tiêu chuẩn vật liệu xây dựng và các yếu tố ảnh hưởng đến chi phí, bạn có thể tham khảo thêm tại các bài viết chuyên sâu về vật liệu xây dựng cao cấp trên Wikipedia.

5. Góc nhìn chuyên gia: Những lưu ý “sống còn” khi xây nhà 2 tầng
Với kinh nghiệm hàng trăm công trình, Techhome muốn chia sẻ với bạn vài điều thực tế khi chọn mẫu nhà 2 tầng 4 phòng ngủ:
-
Đừng tiết kiệm diện tích hành lang quá mức: Nhiều người muốn phòng ngủ thật to mà bóp nghẹt hành lang. Điều này khiến nhà bị bí. Trong bản vẽ anh Đức, hành lang rộng gần 1.2m giúp không khí lưu thông cực tốt giữa các phòng.
-
Cầu thang phải chuẩn phong thủy: Công trình này sử dụng cầu thang 21 bậc (cung Sinh), chiều cao mỗi bậc 176mm. Đây là kích thước “vàng” giúp bước chân thoải mái, không bị mỏi và mang lại tài lộc cho gia chủ.
-
Hệ thống điện nước: Với mẫu nhà 2 tầng 4 phòng ngủ, nhu cầu dùng nước và điện đồng thời rất cao. Hãy yêu cầu kỹ sư tính toán kỹ đường ống nước và aptomat riêng cho từng tầng để tránh quá tải.

6. Techhome – Đơn vị thiết kế và thi công uy tín
Chúng tôi hiểu rằng, xây nhà là việc cả đời. Vì vậy, mỗi bản vẽ mẫu nhà 2 tầng 4 phòng ngủ đều được đội ngũ kiến trúc sư tâm huyết thực hiện. Chúng tôi không chỉ bán bản vẽ, chúng tôi bán giải pháp sống hạnh phúc.
Bạn thấy đấy, từ việc bố trí phòng ngủ cho ông bà dưới tầng 1 đến việc dành riêng một kho giặt đồ trên tầng 2, mọi thứ đều hướng tới sự tiện lợi lâu dài. Đó chính là giá trị mà một đơn vị tư vấn chuyên nghiệp mang lại.
Nếu bạn đang yêu thích mẫu nhà 2 tầng 4 phòng ngủ này hoặc muốn tùy chỉnh lại theo nhu cầu riêng, đừng ngần ngại nhắn tin cho Techhome. Chúng tôi sẵn sàng hỗ trợ bạn kiến tạo nên tổ ấm trong mơ.

CÔNG TY CỔ PHẦN KIẾN TRÚC VÀ XÂY DỰNG TECHHOME
🏠 Website: https://nhadeptechhome.vn/
☎️ Hotline: 036.273.2222
📍 Địa chỉ: B1.1 LK18 Ô 3 – KĐT Thanh Hà – Cienco 5 – Thanh Oai- Hà Nội.
