Khám phá mẫu nhà cấp 4 mái Nhật 127m2 tại Giao Thủy, Nam Định mang hơi hướng tân cổ điển nhẹ nhàng. Thiết kế 3 phòng ngủ sang trọng, công năng khoa học. Xem ngay báo giá và tư vấn xây dựng từ Techhome!
💎 Tuyệt Tác Nhà Cấp 4 Mái Nhật Cho Gia Đình Anh Trường
Dự án thiết kế Nhà ở Gia đình Anh Trường tại Giao Thủy – Nam Định là một minh chứng hoàn hảo cho xu hướng kiến trúc tối giản, tiện nghi đang thịnh hành. Với tổng diện tích sàn tầng 1 là 127m2, mẫu nhà cấp 4 này không chỉ đáp ứng trọn vẹn nhu cầu sinh hoạt của gia đình mà còn mang lại một không gian sống thanh lịch, đậm chất nghỉ dưỡng.
Phong cách thiết kế chủ đạo là sự kết hợp tinh tế giữa kiến trúc nhà cấp 4 tân cổ điển và hệ mái Nhật. Đặc trưng của mái Nhật là độ dốc vừa phải, mở rộng ra các hướng, tạo cảm giác bề thế, vững chãi, nhưng vẫn giữ được nét trẻ trung, hài hòa. Hệ mái này có khả năng chống nóng và thoát nước tốt, rất phù hợp với điều kiện khí hậu Việt Nam. Techhome đã tối ưu hóa bố cục để ngôi nhà Anh Trường không chỉ đẹp mà còn bền vững theo thời gian.

🎨 Phối Cảnh Ngoại Thất Ấn Tượng: Vẻ Đẹp Tinh Tế Của Kiến Trúc Mái Nhật
Ngoại thất nhà cấp 4 mái nhật tại Nam Định này sử dụng tông màu trắng tinh khôi làm chủ đạo, tạo nên sự thanh lịch, sạch sẽ và dễ dàng nổi bật giữa không gian xanh. Sự kết hợp màu sắc được Techhome tính toán kỹ lưỡng:
- Tường và Trụ cột: Màu trắng kem, sử dụng gờ phào chỉ nhẹ nhàng, tinh tế, làm nổi bật lên vẻ đẹp kiến trúc đương đại. Phần chân tường được ốp đá tự nhiên hoặc gạch thẻ sẫm màu, giúp bảo vệ tường khỏi ẩm mốc và tăng tính thẩm mỹ.
- Hệ Mái Nhật: Sử dụng ngói màu xanh than/đen sẫm, tạo điểm nhấn mạnh mẽ, tương phản hoàn hảo với sắc trắng của thân nhà. Độ dốc vừa phải của mái Nhật giúp ngôi nhà trông thấp thoáng, gần gũi với thiên nhiên hơn so với mái Thái.
- Cửa Chính và Cửa Sổ: Cửa kính khung nhôm hệ cao cấp (màu đen/ghi sẫm), vừa tăng cường ánh sáng tự nhiên, vừa đảm bảo tính an ninh và thẩm mỹ hiện đại. Hệ cửa chính lớn với thiết kế pano kính sang trọng là điểm nhấn hút mắt người nhìn tại sảnh.
Phần sảnh chính được thiết kế bậc ngũ cấp nâng cốt nền cao ráo, kết hợp với hệ trụ cột vuông vắn, khỏe khoắn. Tổng thể ngoại thất toát lên vẻ đẹp tối giản, sang trọng và cân đối – đúng tinh thần của kiến trúc Mái Nhật.
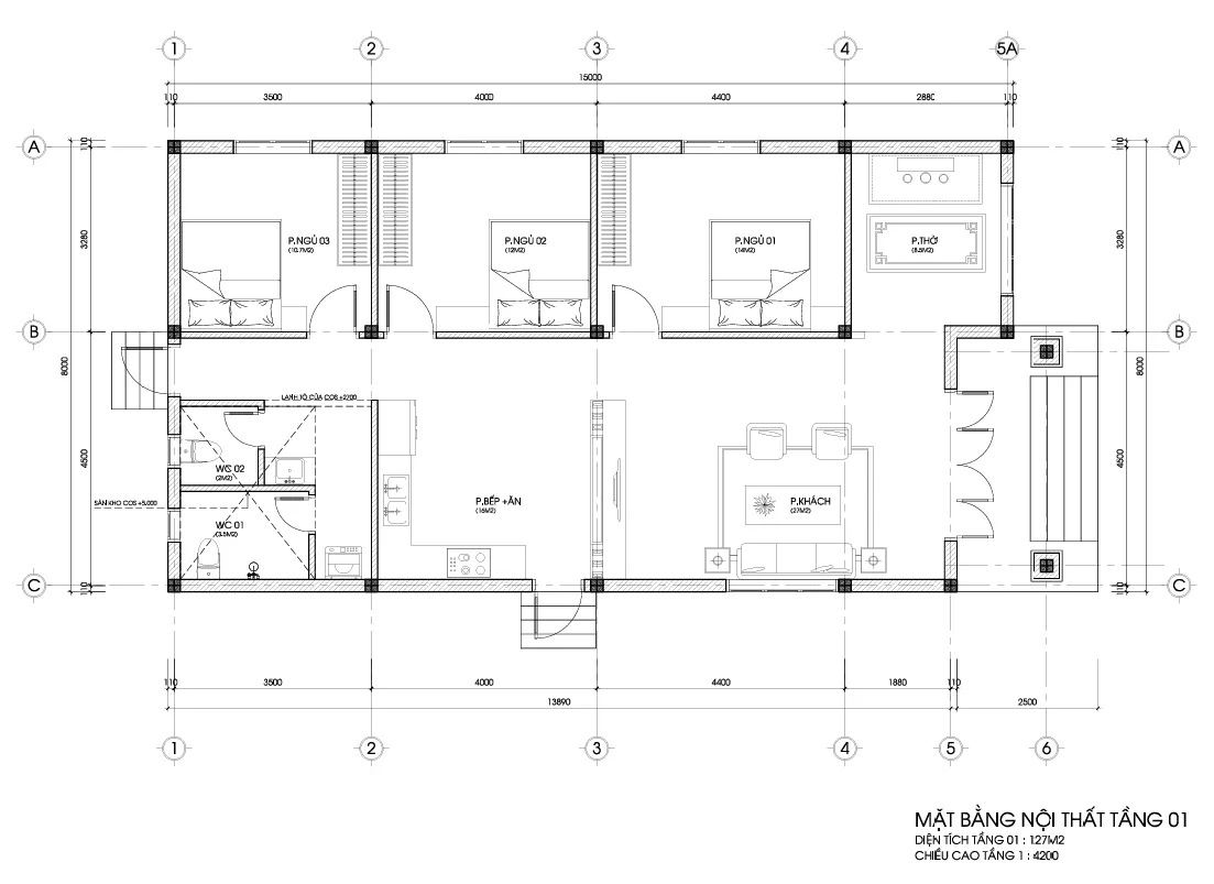
📐 Phân Tích Mặt Bằng Công Năng Tối Ưu Của Nhà Cấp 4 Mái Nhật
Với diện tích sàn tầng 1 là 127m2 , mặt bằng công năng của nhà cấp 4 mái nhật được Techhome bố trí vô cùng khoa học và hợp lý:
- Kích thước tổng thể: Ngôi nhà có chiều rộng 8m và chiều dài 15m, tạo nên tỉ lệ kiến trúc đẹp mắt.
- Phòng Khách 27m2 : Được đặt ở vị trí trung tâm, gần sảnh chính, tạo không gian đón tiếp sang trọng và ấm cúng.
- Phòng Bếp + Ăn: Diện tích 16m2 , được bố trí liền mạch với phòng khách nhưng có sự phân tách tinh tế, tối ưu hóa không gian nấu nướng và sinh hoạt chung.
- 3 Phòng Ngủ : Cả ba phòng ngủ đều được bố trí ở một bên nhà, tách biệt với khu vực sinh hoạt chung, đảm bảo sự riêng tư và yên tĩnh tuyệt đối cho việc nghỉ ngơi.
- Phòng Thờ 8,5m2 : Được bố trí ở một góc trang trọng, thể hiện nét văn hóa truyền thống của gia đình.
- WC Chung : Bố trí kín đáo, tiện lợi cho việc sinh hoạt chung của cả gia đình và khách đến chơi.
Sự phân chia khu vực sinh hoạt chung và khu vực nghỉ ngơi rõ ràng là điểm mạnh lớn nhất của mặt bằng này, mang lại cuộc sống tiện nghi, thoải mái nhất cho gia chủ Anh Trường.

🏗️ Đánh Giá về Kết Cấu và Vật Liệu Xây Dựng Bền Vững
Đối với mẫu nhà cấp 4 mái Nhật diện tích 127m2, Techhome luôn đề xuất và áp dụng giải pháp kết cấu và vật liệu tối ưu để đảm bảo độ bền vững và hiệu quả kinh tế:
- Kết Cấu: Sử dụng hệ kết cấu bê tông cốt thép truyền thống (móng, cột, dầm, sàn) tiêu chuẩn. Việc này đảm bảo khả năng chịu lực tối ưu cho hệ mái, chống nứt, lún trong suốt quá trình sử dụng.
- Vật Liệu Hoàn Thiện:
- Mái: Sử dụng ngói màu cao cấp, có khả năng chống nóng, chống thấm và đặc biệt là độ bền màu cao dưới tác động của thời tiết.
- Tường: Gạch nung tiêu chuẩn, trát vữa xi măng và sơn ngoại thất cao cấp (có khả năng chống thấm, chống bám bụi và kháng tia UV).
- Cửa: Hệ nhôm kính Xingfa, vừa bền bỉ vừa tối đa hóa vẻ đẹp hiện đại và khả năng lấy sáng.
Việc lựa chọn vật liệu chuẩn mực, có nguồn gốc rõ ràng là cam kết của Techhome, giúp chủ đầu tư an tâm về chất lượng công trình và tiết kiệm chi phí bảo trì về lâu dài.
🏅 Lợi Ích và Giá Trị Khi Chọn Techhome
Techhome là Công ty Cổ phần Kiến trúc và Xây dựng uy tín, chuyên cung cấp giải pháp thiết kế và thi công trọn gói nhà ở gia đình. Khi đồng hành cùng chúng tôi, khách hàng nhận được những giá trị cốt lõi:
- Năng Lực Chuyên Môn Vững Vàng: Đội ngũ kiến trúc sư và kỹ sư giàu kinh nghiệm , chuyên môn cao. Chúng tôi đảm bảo bản vẽ chi tiết, chính xác, tuân thủ tiêu chuẩn kỹ thuật thi công.
- Thiết Kế Độc Bản, Tối Ưu: Mỗi dự án là một bản thiết kế độc đáo, được nghiên cứu kỹ lưỡng về phong thủy, yếu tố địa lý , và ngân sách của gia chủ.
- Cam Kết Chất Lượng Tuyệt Đối: Sử dụng vật liệu chính hãng, quy trình giám sát chặt chẽ, đảm bảo thi công đúng tiến độ và chất lượng kỹ thuật.
- Hỗ trợ Tư vấn Kỹ thuật: Luôn sẵn sàng hỗ trợ và giải đáp mọi thắc mắc của khách hàng trong suốt quá trình thực hiện dự án.
💰 Nhà Cấp 4 Mái Nhật 127m2 có giá bao nhiêu?
Chi phí xây dựng luôn là yếu tố quan trọng hàng đầu. Đối với mẫu nhà cấp 4 mái Nhật diện tích sàn 127m2 này, chi phí sẽ phụ thuộc vào gói dịch vụ và vật liệu lựa chọn:
| Hạng mục Chi phí | Gói Tiêu Chuẩn (Ước tính) | Gói Cao Cấp (Ước tính) |
| Thiết Kế (Kiến trúc + Nội thất) | Liên hệ để nhận ưu đãi | Liên hệ để nhận ưu đãi |
| Thi Công Thô và Nhân công Hoàn thiện | 5.500.000 – 6.000.000 VNĐ/m2 | 6.500.000 – 7.000.000 VNĐ/m2 |
| Thi Công Trọn Gói (Chìa Khóa Trao Tay) | 8.500.000 – 9.500.000 VNĐ/m2 | 10.000.000 – 12.000.000 VNĐ/m2 |
Tổng Chi Phí Ước Tính (Chìa Khóa Trao Tay):
- Diện tích xây dựng: Tính toán theo hệ số xây dựng (sàn 127m2 + Mái Nhật + Móng).
- Tổng Chi Phí: Dự kiến dao động từ 1.1 tỷ – 1.5 tỷ VNĐ (Tùy thuộc vào vị trí, thời điểm và chủng loại vật liệu hoàn thiện chi tiết).
Lưu ý: Đây chỉ là mức chi phí ước tính. Để nhận được báo giá chính xác và chi tiết nhất cho công trình của bạn, vui lòng liên hệ trực tiếp với chúng tôi. Hoặc để tìm hiểu rõ hơn về tiêu chuẩn vật liệu xây dựng và các yếu tố ảnh hưởng đến chi phí, bạn có thể tham khảo thêm tại các bài viết chuyên sâu về vật liệu xây dựng cao cấp trên Wikipedia.

☎️ Kết Luận
Nhà cấp 4 mái Nhật 127m2 là giải pháp hoàn hảo, kết hợp giữa sự sang trọng, công năng tối ưu và hiệu quả kinh tế. Techhome tự tin mang đến một không gian sống mơ ước, bền vững cho gia đình bạn.
Đừng để ước mơ về ngôi nhà đẹp chỉ nằm trên bản vẽ!
Liên hệ ngay với đội ngũ chuyên gia của Techhome để nhận được tư vấn, khảo sát, và báo giá miễn phí:
- Hotline Tư Vấn : 0364042222 – 0387603333
- Công ty Cổ phần Kiến trúc và Xây dựng Techhome




