Tuyệt Phẩm Mẫu Nhà Cấp 4 Mái Thái 5x24m: Thiết Kế 3 Phòng Ngủ Đẳng Cấp Tại Đồng Nai

Chiêm ngưỡng mẫu nhà cấp 4 mái Thái 5x24m đẹp hiện đại của gia đình anh Tuấn tại Đồng Nai. Thiết kế 3 phòng ngủ tiện nghi, kiến trúc tân cổ điển sang trọng do Techhome thực hiện. Xem ngay!

1. Giới thiệu chung về dự án nhà cấp 4 mái Thái tại Đồng Nai

Trong bối cảnh quỹ đất nội đô ngày càng hạn hẹp, việc sở hữu một lô đất có chiều sâu lớn như 5x24m là một lợi thế tuyệt vời để kiến tạo không gian sống lý tưởng. Dự án mới nhất được Công ty Cổ phần Kiến trúc và Xây dựng Techhome bàn giao hồ sơ thiết kế cho gia đình Anh Tuấn tại Đồng Nai chính là một ví dụ điển hình cho sự hoàn hảo đó.

Đây là mẫu nhà cấp 4 mái Thái 5x24m (hay còn gọi là nhà trệt) được thiết kế theo phong cách tân cổ điển nhẹ nhàng, vừa đáp ứng gu thẩm mỹ tinh tế của gia chủ, vừa giải quyết bài toán công năng cho gia đình nhiều thành viên. Với kích thước xây dựng phủ bì khoảng 5m x 24.1m, ngôi nhà không chỉ bề thế mà còn đảm bảo sự thông thoáng tối đa.

mẫu nhà cấp 4 mái Thái 5x24m

2. Phối cảnh ngoại thất ấn tượng của mẫu nhà cấp 4 mái Thái 5x24m

Điểm nhấn đầu tiên của mẫu nhà cấp 4 mái Thái 5x24m này chính là mặt tiền 5m được xử lý khéo léo để “ăn gian” chiều cao và tạo độ thoáng.

  • Kiến trúc mái Thái giật cấp: Hệ mái chữ A với độ dốc lớn, đỉnh mái cao tới +6.050m giúp ngôi nhà thoát nước mưa nhanh chóng, chống nóng hiệu quả cho khí hậu nhiệt đới tại Đồng Nai. Phần mái được trang trí bằng các con sơn bê tông giả gỗ và ngói màu xanh ghi sang trọng.

  • Màu sắc trang nhã: Techhome sử dụng tông màu trắng sứ làm chủ đạo, kết hợp với các mảng tường sơn màu ghi nhấn và chân tường ốp đá chẻ sẫm màu. Sự phối hợp này tạo nên vẻ đẹp thanh thoát, bền bỉ với thời gian.

  • Chi tiết Tân cổ điển: Mặt tiền gây ấn tượng mạnh với hệ vòm cong trang trí mềm mại ngay sảnh đón, kết hợp với hệ cột trụ vuông vức ốp đá, mang lại sự vững chãi nhưng không kém phần uyển chuyển.

  • Hệ thống cửa hiện đại: Cửa đi chính 4 cánh và cửa sổ đều sử dụng nhôm hệ kết hợp kính an toàn dày 8.38mm, giúp lấy sáng tự nhiên tối đa cho không gian nội thất bên trong.

mẫu nhà cấp 4 mái Thái 5x24m

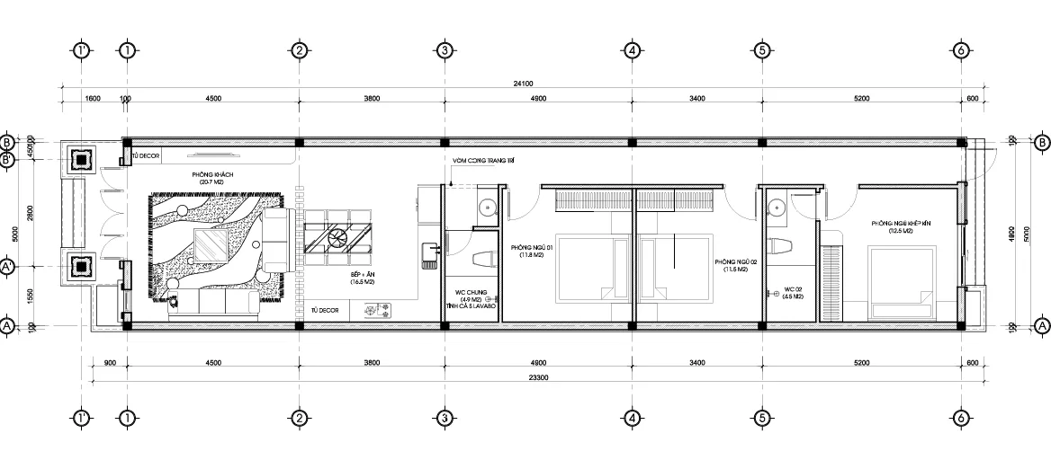
3. Phân tích mặt bằng công năng tối ưu trên diện tích 5x24m

Với chiều dài lên tới hơn 24m, thách thức lớn nhất của mẫu nhà cấp 4 mái Thái 5x24m là bố trí các phòng chức năng sao cho khoa học và tránh cảm giác hun hút của nhà ống. Techhome đã giải quyết bài toán này bằng một bản vẽ mặt bằng thông minh:

  • Phòng khách sang trọng: Ngay sau sảnh chính là phòng khách rộng 20.7m2. Đây là không gian mở, kết nối trực tiếp với khu vực bếp ăn qua hệ vách ngăn trang trí (Tủ Decor), tạo cảm giác rộng rãi.

  • Hành lang giao thông: Một hành lang xuyên suốt kết nối các không gian, đảm bảo sự di chuyển thuận tiện từ trước ra sau nhà.

  • Hệ thống 03 Phòng ngủ tiện nghi: Để đảm bảo sự riêng tư, 3 phòng ngủ được bố trí chạy dọc theo chiều sâu của nhà:

    • Phòng ngủ 01: Diện tích 11.8m2.

    • Phòng ngủ 02: Diện tích 11.5m2.

    • Phòng ngủ 03: Diện tích 12.5m2 (nằm ở vị trí cuối nhà, yên tĩnh tuyệt đối). Có WC khép kín 4.5m2.

  • Khu vực vệ sinh (WC): Ngôi nhà được bố trí 02 nhà vệ sinh để phục vụ sinh hoạt:

    • WC chung: Diện tích 4.9m2 (tính cả khu vực lavabo bên ngoài), tiện lợi cho khách và sinh hoạt chung.

mặt bằng mẫu nhà cấp 4 mái Thái 5x24m

4. Đánh giá về Kết cấu và Vật liệu xây dựng

Độ bền và thẩm mỹ của mẫu nhà cấp 4 mái Thái 5x24m được Techhome cam kết qua việc chỉ định các vật liệu cao cấp trong hồ sơ thiết kế kỹ thuật thi công:

  • Sàn nhà: Phòng khách được lát gạch Granite vân đá kích thước lớn 800x800mm, tạo sự sang trọng và mở rộng không gian thị giác. Khu vực vệ sinh sử dụng gạch Ceramic chống trơn 300x300mm để đảm bảo an toàn.

  • Hệ trần: Kết hợp giữa trần bê tông cốt thép (BTCT) đổ tại chỗ và trần thạch cao khung xương chìm chống ẩm. Hệ thống đèn Downlight âm trần và đèn hắt LED được bố trí khoa học, tăng thêm vẻ lung linh cho nội thất.

  • Kết cấu mái: Sử dụng hệ xà gồ thép hộp mạ kẽm siêu nhẹ, lợp ngói hoặc tôn giả ngói, vừa giảm tải trọng cho móng vừa đảm bảo tính thẩm mỹ mái Thái đặc trưng.

mẫu nhà cấp 4 mái Thái 5x24m

5. Lợi ích và Giá trị khi chọn Techhome

Tại sao gia đình anh Tuấn tại Đồng Nai lại tin tưởng giao phó bản vẽ mẫu nhà cấp 4 mái Thái 5x24m cho Techhome?

  • Hồ sơ chi tiết: Bộ hồ sơ thiết kế bao gồm đầy đủ các hạng mục: Kiến trúc, Kết cấu, Điện nước, Bóc tách khối lượng… giúp gia chủ dễ dàng quản lý chi phí và giám sát thợ thi công.

  • Hỗ trợ kỹ thuật 24/7: Techhome cung cấp số hotline hỗ trợ tư vấn kỹ thuật xây dựng: 0364.04.2222 – 0387.60.3333, đảm bảo mọi thắc mắc trong quá trình thi công đều được giải đáp kịp thời.

  • Đội ngũ chuyên nghiệp: Dưới sự chủ trì của KTS và sự kiểm duyệt khắt khe , mỗi bản vẽ đều đạt độ chính xác cao nhất.

mẫu nhà cấp 4 mái Thái 5x24m

6. Mẫu nhà cấp 4 mái Thái 5x24m có giá bao nhiêu?

Chi phí xây dựng trọn gói cho một mẫu nhà cấp 4 mái Thái 5x24m với công năng 3 phòng ngủ như nhà anh Tuấn sẽ phụ thuộc vào gói vật liệu gia chủ lựa chọn (Trung bình – Khá – Tốt).

  • Với diện tích sàn xây dựng khoảng 120m2 (5x24m), chi phí phần thô và hoàn thiện cơ bản thường nằm trong mức đầu tư hợp lý, phù hợp với nhiều gia đình Việt.

  • Việc có hồ sơ thiết kế chi tiết từ Techhome sẽ giúp bạn tiết kiệm được 10-15% chi phí phát sinh do sai sót hoặc thay đổi trong quá trình thi công.

Lưu ý: Đây chỉ là mức chi phí ước tính. Để nhận được báo giá chính xác và chi tiết nhất cho công trình của bạn, vui lòng liên hệ trực tiếp với chúng tôi. Hoặc để tìm hiểu rõ hơn về tiêu chuẩn vật liệu xây dựng và các yếu tố ảnh hưởng đến chi phí, bạn có thể tham khảo thêm tại các bài viết chuyên sâu về vật liệu xây dựng cao cấp trên Wikipedia.

7. Kết luận 

Mẫu nhà cấp 4 mái Thái 5x24m của gia đình anh Tuấn là minh chứng cho việc một ngôi nhà ống vẫn có thể trở nên sang trọng, thoáng đãng và đầy đủ tiện nghi nếu được thiết kế bài bản.

Nếu bạn đang sở hữu mảnh đất tương tự và yêu thích phong cách này, hãy liên hệ ngay với Techhome để được tư vấn miễn phí!

  • Hotline tư vấn kỹ thuật: 0364.04.2222 – 0387.60.3333

  • Đơn vị thực hiện: Công ty Cổ phần Kiến trúc và Xây dựng TECHHOME

  • Dịch vụ: Thiết kế & Thi công trọn gói Nhà phố, Biệt thự, Nhà cấp 4 trên toàn quốc.

Xem thêm các dự án nổi bật khác của Techhome tại https://nhadeptechhome.vn/

Để lại một bình luận

Email của bạn sẽ không được hiển thị công khai. Các trường bắt buộc được đánh dấu *

    Vui lòng nhấn nút YÊU CẦU TƯ VẤN và đợi 1 - 2 giây đến khi thấy thông báo thành công

    YÊU CẦU TƯ VẤN