Xây nhà đời người có mấy lần, bởi vậy ai cũng muốn dồn hết tâm huyết vào đó. Anh Thùy ở Bắc Ninh cũng vậy. Khi tìm đến TechHome, anh trăn trở về một không gian sống vừa phải sang, vừa phải thoáng nhưng quan trọng nhất là phải gắn kết được các thành viên trong gia đình. Và thế là mẫu nhà phố 2 tầng 1 tum này ra đời, mang theo hơi thở của kiến trúc đương đại và sự tinh tế trong từng đường nét thiết kế.
1. Ngoại thất ấn tượng – “Yêu từ cái nhìn đầu tiên”
Nhìn vào mặt tiền của ngôi nhà, bạn sẽ thấy ngay sự mạnh mẽ trong hình khối. TechHome sử dụng các mảng miếng vuông vức, giật cấp để tạo chiều sâu, tránh cảm giác đơn điệu của những ngôi nhà ống thông thường. Điểm nhấn đắt giá nhất chính là sự kết hợp vật liệu. Tầng 1 được ốp đá vân mây đen sang trọng, tạo cảm giác vững chãi cho cả công trình. Lên đến tầng 2 và tầng tum, chúng mình sử dụng nhựa giả gỗ ốp trần balcony, kết hợp cùng các mảng tường trắng sứ, tạo nên một bản giao hưởng màu sắc cực kỳ nịnh mắt.
Đây chính là mẫu nhà phố 2 tầng 1 tum tiêu biểu cho xu hướng kiến trúc 2026: tối giản nhưng không đơn giản. Việc sử dụng lan can kính cường lực không chỉ giúp ngôi nhà trông rộng hơn mà còn tận dụng tối đa ánh sáng tự nhiên vào bên trong.

2. Giải mã công năng “vàng” trong diện tích 5x18m
Một ngôi nhà đẹp mà không tiện thì cũng chỉ là một bức tranh. Với mẫu nhà phố 2 tầng 1 tum này, các kiến trúc sư của TechHome đã tính toán kỹ lưỡng từng cm2 để đảm bảo sự thoải mái nhất.
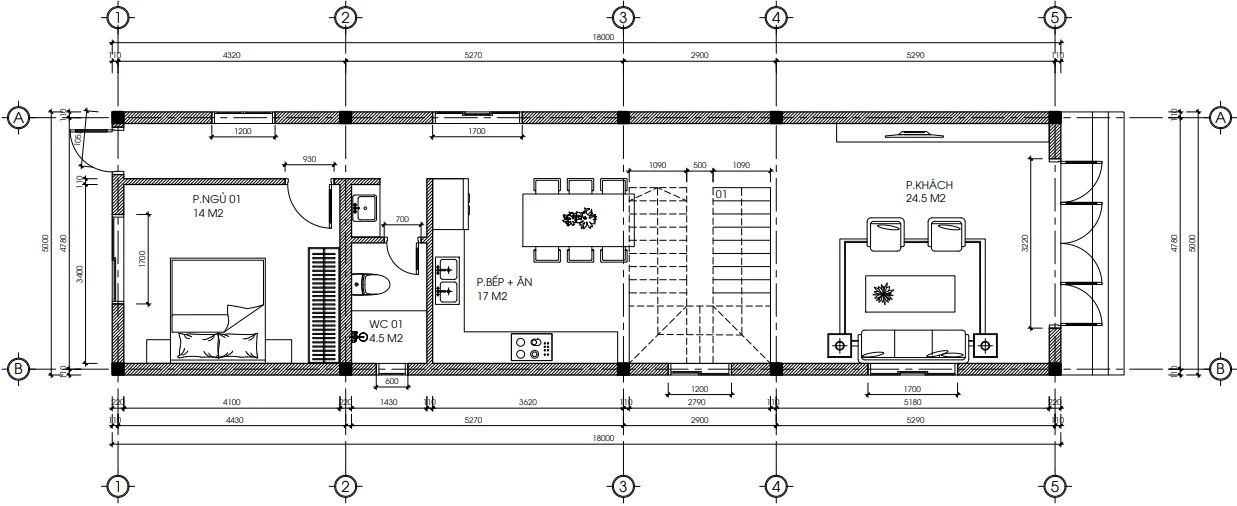
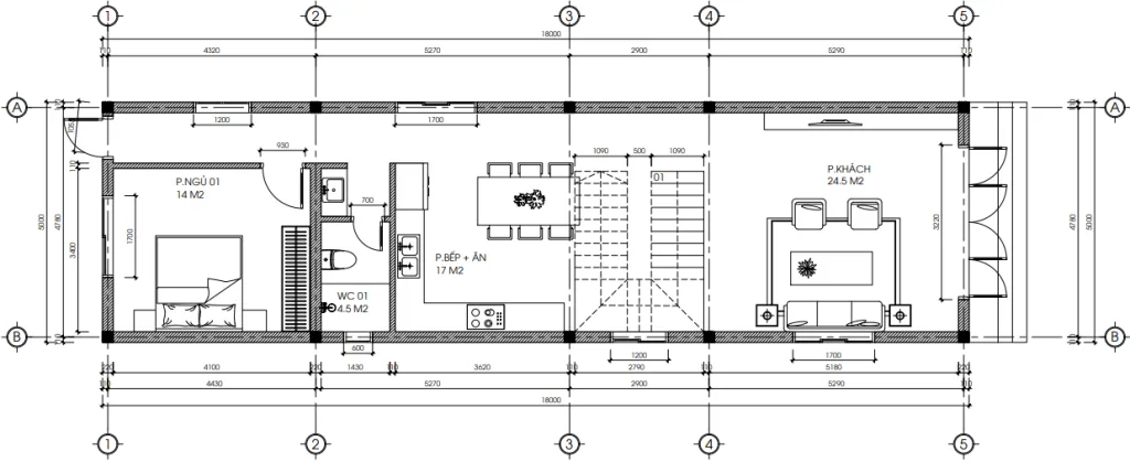
Tầng 1: Không gian sinh hoạt chung ấm cúng
Bước qua cánh cửa chính, bạn sẽ choáng ngợp bởi phòng khách rộng tới 24.5 m2. Đây là nơi cả nhà quây quần sau một ngày dài. Tiếp nối là khu vực bếp và phòng ăn diện tích 17 m2. Đặc biệt, ở tầng 1 vẫn bố trí được một phòng ngủ riêng biệt rộng 14 m2 , rất phù hợp cho người lớn tuổi trong nhà hoặc làm phòng ngủ dự phòng khi có khách.

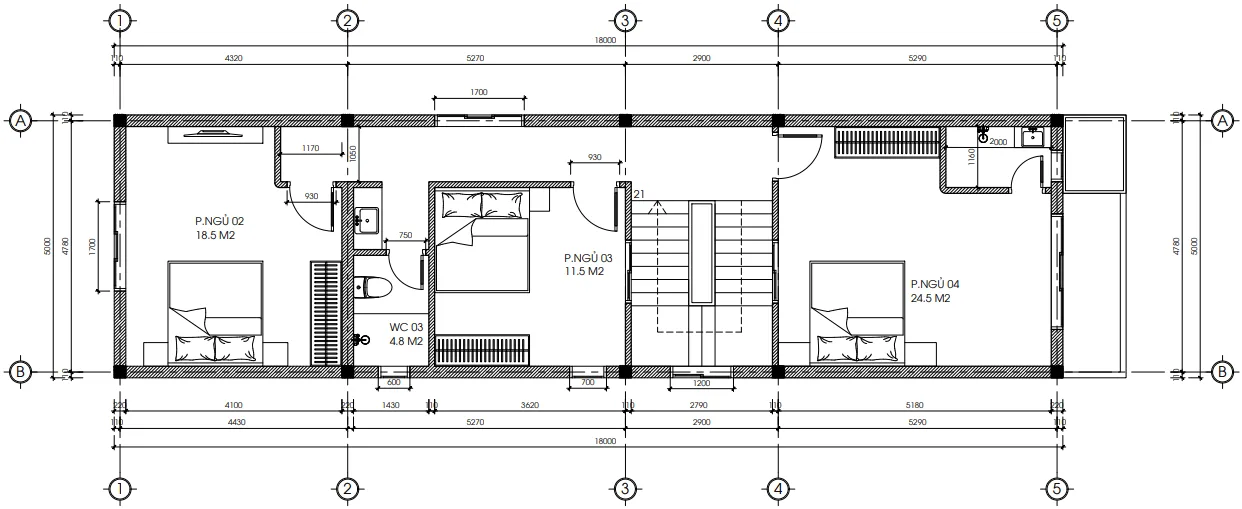
Tầng 2: “Lãnh địa” của sự riêng tư
Nếu tầng 1 là nơi náo nhiệt thì tầng 2 lại là khoảng lặng bình yên. Với diện tích 95 m2 , chúng mình bố trí được tới 3 phòng ngủ:
-
Phòng ngủ 02: 18.5 m2.
-
Phòng ngủ 03: 11.5 m2.
-
Phòng ngủ 04 (Master): Rộng tới 24.5 m2. Mọi căn phòng trong mẫu nhà phố 2 tầng 1 tum này đều có cửa sổ hoặc ban công để lấy gió trời, giúp không khí luôn lưu thông, cực tốt cho sức khỏe.

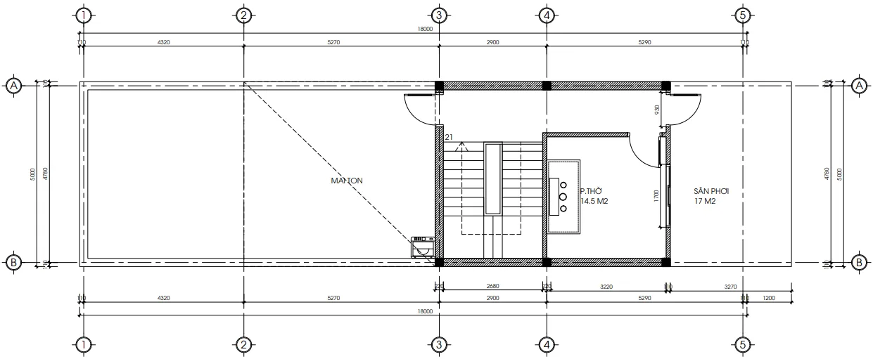
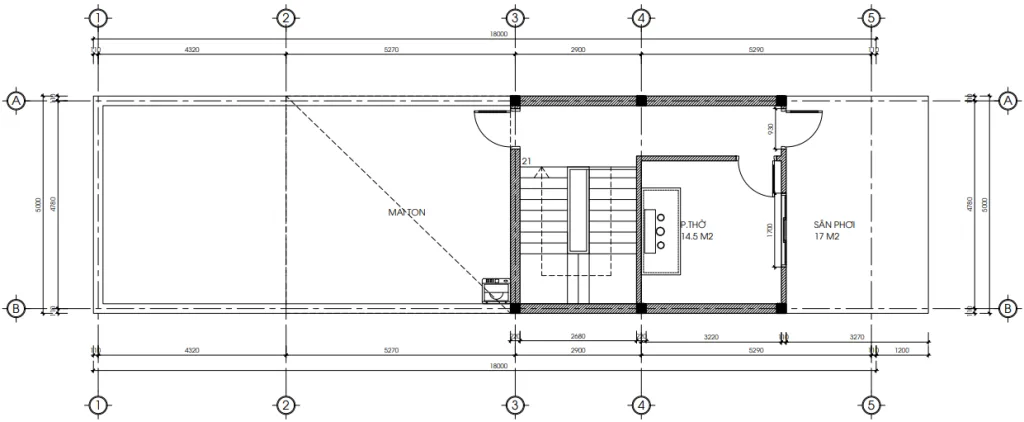
Tầng tum: Nơi giao thoa đất trời
Tầng tum với diện tích 35 m2 là nơi đặt phòng thờ trang trọng (14.5 m2) nhìn ra sân phơi rộng rãi (17 m2). Đây là khoảng không gian lý tưởng để anh Thùy có thể trồng thêm cây xanh, tạo một góc chill nhỏ vào mỗi buổi tối cuối tuần.

3. Tại sao mẫu nhà phố 2 tầng 1 tum lại lên ngôi?
Thực tế đi tư vấn nhiều năm, mình thấy khách hàng rất chuộng mẫu nhà phố 2 tầng 1 tum. Lý do rất đơn giản:
-
Tiết kiệm chi phí: Thay vì xây lên 3 tầng thật, việc làm thêm một tầng tum giúp bạn vừa có thêm phòng thờ, sân phơi mà chi phí lại rẻ hơn đáng kể.
-
Chống nóng cực tốt: Tầng tum đóng vai trò như một lớp đệm cách nhiệt, giúp các tầng dưới luôn mát mẻ.
-
Thẩm mỹ cao: Về mặt kiến trúc, mẫu nhà phố 2 tầng 1 tum tạo được sự cân đối, thanh thoát hơn hẳn so với nhà 2 tầng hay 3 tầng thông thường.

4. Chi tiết vật liệu và thi công tại TechHome
Trong mẫu nhà phố 2 tầng 1 tum của anh Thùy, TechHome ưu tiên sử dụng các dòng vật liệu bền bỉ với thời gian:
-
Hệ cửa nhôm kính Xingfa cao cấp, cách âm, cách nhiệt tuyệt đối.
-
Sơn ngoại thất chống thấm, chống bám bẩn.
-
Hệ thống đèn LED âm trần tạo hiệu ứng lung linh khi về đêm.
Từng đường phào chỉ, từng điểm nối vật liệu đều được các anh em thợ lành nghề thực hiện tỉ mỉ. Bởi chúng mình hiểu, mẫu nhà phố 2 tầng 1 tum này không chỉ là một dự án, mà là cả một ước mơ của gia chủ.

5. Báo giá thi công trọn gói mẫu nhà phố 2 tầng 1 tum (Tham khảo)
Để các bạn dễ hình dung và chuẩn bị ngân sách, TechHome xin gửi tới bảng báo giá sơ bộ dựa trên công trình thực tế của anh Thùy:
| Hạng mục | Chi tiết | Đơn giá dự kiến (VNĐ) |
| Thiết kế kiến trúc |
Hồ sơ kỹ thuật, 3D ngoại thất, điện nước |
108.000 /m2 |
| Thi công phần thô | Nhân công + Vật tư thô (Cát, đá, xi măng, thép…) | 3.600.000 – 4.200.000 /m2 |
| Thi công trọn gói | Chìa khóa trao tay (Gồm hoàn thiện cơ bản) | 6.500.000 – 7.500.000 /m2 |
Lưu ý: Tổng diện tích sàn cho mẫu nhà phố 2 tầng 1 tum này khoảng 220 m2 (tính cả mái và tum). Tổng đầu tư dự kiến rơi vào khoảng 1,4 – 1,7 tỷ đồng tùy vào mức độ cao cấp của vật liệu hoàn thiện. Để tìm hiểu rõ hơn về tiêu chuẩn vật liệu xây dựng và các yếu tố ảnh hưởng đến chi phí, bạn có thể tham khảo thêm tại các bài viết chuyên sâu về vật liệu xây dựng cao cấp trên Wikipedia.

6. Cảm nhận của gia chủ về mẫu nhà phố 2 tầng 1 tum
Anh Thùy chia sẻ với chúng mình: “Lúc đầu cũng lo lắm, không biết lên hình có giống thiết kế không. Nhưng khi hoàn thiện, nhìn cái mẫu nhà phố 2 tầng 1 tum này, hàng xóm ai cũng khen, mình thấy thực sự xứng đáng”. Đó chính là động lực lớn nhất để TechHome tiếp tục sáng tạo.
Nếu bạn cũng đang sở hữu một mảnh đất phố và muốn tìm kiếm một mẫu nhà phố 2 tầng 1 tum vừa túi tiền mà vẫn đẳng cấp, hãy liên hệ ngay với TechHome. Chúng mình không chỉ bán bản vẽ, chúng mình cùng bạn xây tổ ấm.

7. Lời khuyên từ chuyên gia khi chọn mẫu nhà phố 2 tầng 1 tum
Đừng chỉ nhìn vào phối cảnh đẹp mắt. Khi chọn mẫu nhà phố 2 tầng 1 tum, bạn cần lưu ý:
-
Hướng nắng: Hãy chú ý đến hệ thống rèm và hướng mở cửa để tránh nắng gắt miền Bắc.
-
Hệ thống thoát nước: Sân thượng và sân phơi cần được xử lý chống thấm và thoát nước thật kỹ.
-
Phong thủy: Tầng tum thường đặt bàn thờ, hãy đảm bảo vị trí này yên tĩnh và tôn nghiêm nhất.
TechHome luôn sẵn sàng hỗ trợ tư vấn kỹ thuật xây dựng 24/7 qua số hotline: 0364042222 – 0387603333. Đừng ngần ngại, vì sự tư vấn của chúng mình là hoàn toàn miễn phí.
Hy vọng qua bài viết này, bạn đã có thêm ý tưởng cho ngôi nhà tương lai của mình. Mẫu nhà phố 2 tầng 1 tum tại Bắc Ninh này chính là một minh chứng cho việc: chỉ cần có tâm và có tầm, không gian nào cũng có thể trở thành thiên đường.
Nhớ theo dõi nhadeptechhome.vn thường xuyên để cập nhật những mẫu nhà phố 2 tầng 1 tum mới nhất nhé! Chúc bạn sớm sở hữu được ngôi nhà hằng mong ước.
CÔNG TY CỔ PHẦN KIẾN TRÚC VÀ XÂY DỰNG TECHHOME
☎️ Hotline: 036.273.2222
📍 Địa chỉ: B1.1 LK18 Ô 3 – KĐT Thanh Hà – Cienco 5 – Thanh Oai- Hà Nội.
