Chào các bác . Hôm nay, mình muốn dẫn các bạn về vùng đất cố đô Ninh Bình để ghé thăm một công trình mà đội ngũ Techhome vừa hoàn thiện hồ sơ thiết kế kỹ thuật thi công cho gia đình anh Trực.
Nếu bạn đang sở hữu một mảnh đất phân lô phố thị và đang loay hoay tìm kiếm ý tưởng, thì mẫu nhà ống 3 tầng hiện đại này chính là “chân ái” mà bạn không nên bỏ lỡ. Hãy cùng mình “mổ xẻ” xem căn nhà này có gì mà khiến gia chủ ưng bụng đến thế nhé!
1. Tổng quan dự án: Nhà là nơi để về
Thông tin dự án:
-
Chủ đầu tư: Anh Trực.
-
Địa điểm: Ninh Bình.
-
Đơn vị thiết kế: Công ty Cổ phần Kiến trúc và Xây dựng Techhome.
-
Quy mô: 3 tầng, phong cách hiện đại.
-
Diện tích xây dựng: 100m² sàn tầng 1.
Khi anh Trực tìm đến Techhome, anh có chia sẻ một nỗi lòng rất thực tế: “Nhà phố bây giờ san sát nhau, anh muốn một căn nhà nhìn vào là thấy sự khác biệt, hiện đại nhưng không được quá ‘diêm dúa'”. Và thế là, phương án thiết kế mẫu nhà ống 3 tầng hiện đại mã số 0149 đã ra đời.

2. Kiến trúc ngoại thất: Những đường cong “biết nói”
Cái nhìn đầu tiên luôn là quan trọng nhất. Thay vì những hình khối vuông vức khô khan thường thấy, các kiến trúc sư Techhome đã khéo léo đưa vào những chi tiết vòm cong ở mặt tiền.
Sự phối hợp màu sắc tinh tế
Căn nhà sử dụng tone màu trung tính làm chủ đạo: trắng vân đá kết hợp cùng xám ghi trầm mặc. Sự tương phản này không chỉ giúp mẫu nhà ống 3 tầng hiện đại trở nên nổi bật mà còn bền màu theo thời gian, bất chấp cái nắng cái gió của miền Bắc.
Điểm nhấn từ vật liệu
-
Đá ốp mặt tiền: Những mảng tường tầng 1 được ốp đá vân mây sáng màu, vừa tạo cảm giác sạch sẽ, vừa tăng vẻ sang trọng.
-
Hệ thống cửa Xingfa: Toàn bộ cửa sổ và cửa ra vào sử dụng nhôm kính cao cấp, giúp lấy sáng tối đa cho không gian bên trong.
-
Ban công kính: Sử dụng kính cường lực giúp nới rộng tầm nhìn, khiến mặt tiền mẫu nhà ống 3 tầng hiện đại trông thanh thoát hơn hẳn so với những mẫu lan can sắt hay bê tông truyền thống.
Để tìm hiểu rõ hơn về tiêu chuẩn vật liệu xây dựng và các yếu tố ảnh hưởng đến chi phí, bạn có thể tham khảo thêm tại các bài viết chuyên sâu về vật liệu xây dựng cao cấp trên Wikipedia.

3. Giải pháp công năng: Tối ưu đến từng milimet
Một căn nhà đẹp trước hết phải là một căn nhà tiện dụng. Với tổng diện tích sử dụng hơn 290m², Techhome đã bố trí tới 5 phòng ngủ để đáp ứng nhu cầu cho gia đình nhiều thế hệ của anh Trực.
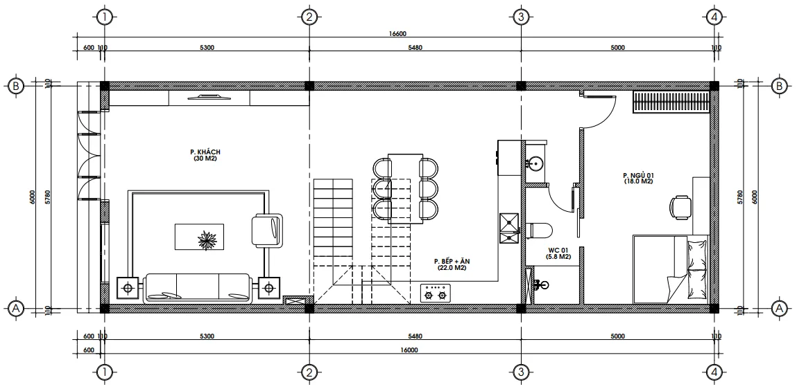
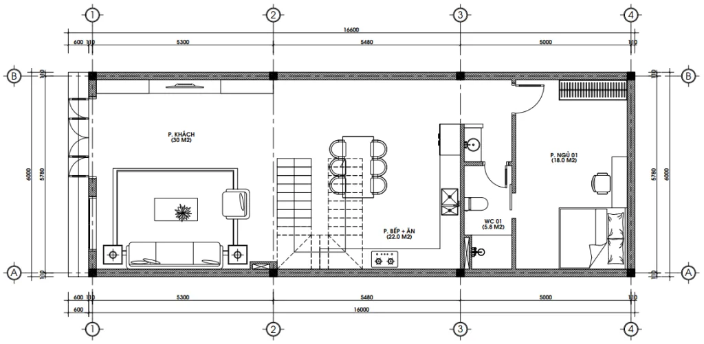
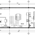
Tầng 1: Không gian sinh hoạt chung ấm cúng (100m²)
Bước qua cánh cổng là không gian tầng 1 với chiều cao lý tưởng lên tới 4.1m. Điều này cực kỳ quan trọng đối với nhà ống vì nó tạo sự thông thoáng, tránh cảm giác bí bách.
-
Phòng khách (30m²): Rộng rãi, là nơi tiếp khách và cả gia đình quây quần.
-
Phòng bếp + ăn (22m²): Được ngăn cách tinh tế với phòng khách bởi hệ cầu thang 25 bậc chuẩn phong thủy.
-
Phòng ngủ 01 (18m²): Dành cho người lớn tuổi trong nhà để tránh phải leo trèo cầu thang.
-
WC 01 (5.8m²): Bố trí kín đáo nhưng thuận tiện.
Đây là cách sắp xếp mặt bằng cực kỳ phổ biến trong mẫu nhà ống 3 tầng hiện đại ngày nay, giúp tối ưu diện tích mà vẫn đảm bảo sự riêng tư.

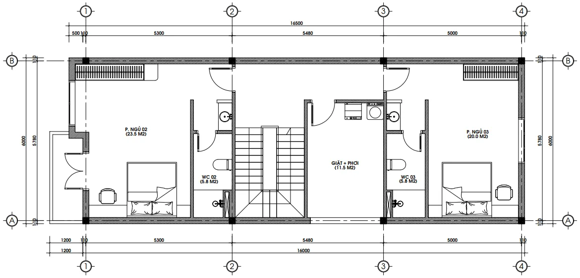
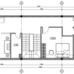
Tầng 2: Nơi nghỉ ngơi riêng tư (95m²)
Tầng 2 được thiết kế với chiều cao tầng 3.7m, tập trung vào chức năng nghỉ ngơi.
-
Phòng ngủ 02 (23.5m²): Một căn phòng master cực rộng có ban công hướng ra mặt tiền và WC khép kín.
-
Phòng ngủ 03 (20m²): Không gian yên tĩnh phía sau kết hợp vệ sinh riêng biệt tiện lợi.
-
Khu giặt phơi (11.5m²): Được đưa vào giữa nhà, vừa kín đáo lại rất thuận tiện.
-
2 Nhà vệ sinh (5.8m²/phòng): Đảm bảo mỗi phòng ngủ đều có sự tiện nghi nhất định.
Việc sở hữu một mẫu nhà ống 3 tầng hiện đại có khu giặt phơi ngay tại tầng 2 là một điểm cộng lớn, giúp gia chủ không phải mang vác quần áo lên tầng thượng nắng nóng.

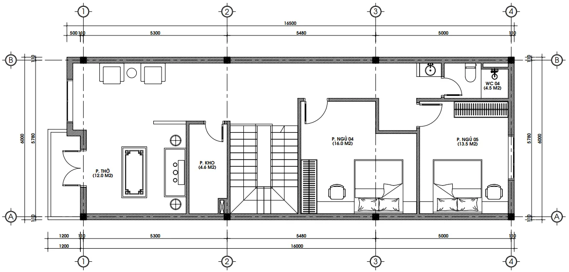
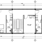
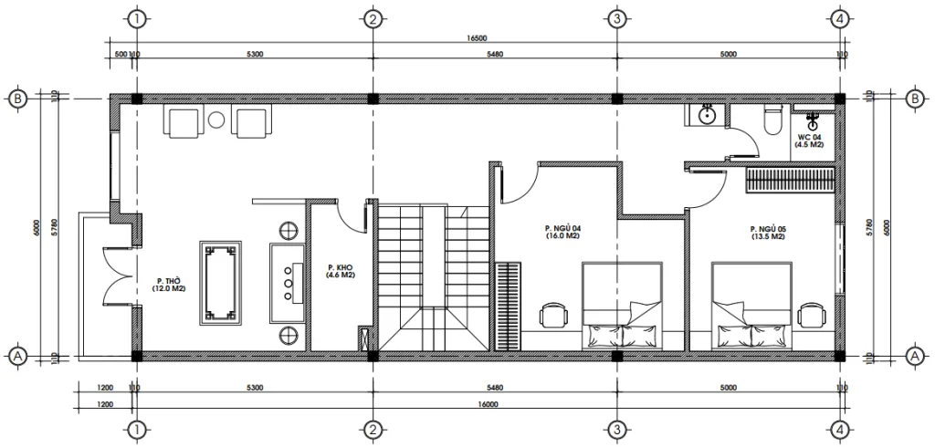
Tầng 3: Tâm linh và đa năng (95m²)
-
Phòng thờ (12m²): Đặt ở vị trí trang trọng nhất phía trước, hướng ra ban công.
-
Phòng ngủ 04 & 05 (16m² & 13.5m²): Dành cho con cái hoặc khách đến chơi nhà.
-
Phòng kho (4.6m²): Giải quyết nỗi lo về đồ đạc lỉnh kỉnh.
-
WC 04 (4.5m²): Phục vụ riêng cho tầng 3.

4. Tại sao mẫu nhà ống 3 tầng hiện đại này lại được săn đón?
Thực tế, không phải ngẫu nhiên mà mã thiết kế 0149 lại trở thành “best-seller” tại nhadeptechhome.vn. Có 3 lý do chính:
-
Tính thực tế cao: Bản vẽ của Techhome cực kỳ chi tiết từ số bậc cầu thang (25 bậc) đến chiều cao từng tầng (4.1m và 3.7m). Điều này giúp thợ thi công dễ dàng, hạn chế sai sót.
-
Tối ưu ánh sáng: Với hệ cửa kính lớn và ô thông tầng giữa nhà, mẫu nhà ống 3 tầng hiện đại của anh Trực luôn tràn ngập ánh sáng tự nhiên, giúp tiết kiệm điện năng và tốt cho sức khỏe.
-
Hệ thống mái bằng bền bỉ: Thiết kế mái bằng giúp anh Trực dễ dàng lắp đặt hệ thống bồn nước và năng lượng mặt trời phía trên mà không làm ảnh hưởng đến thẩm mỹ.

5. Báo giá thiết kế và thi công tham khảo
Techhome hiểu rằng, khi xem một mẫu nhà ống 3 tầng hiện đại, điều bạn quan tâm nhất ngoài vẻ đẹp chính là chi phí. Dưới đây là bảng giá dự toán tại Techhome cho năm 2026:
Bảng giá dịch vụ Techhome
| Hạng mục | Đơn giá (VNĐ/m²) | Ghi chú |
| Thiết kế kiến trúc | 108.000 |
Bao gồm 3D ngoại thất, hồ sơ kỹ thuật. |
| Thiết kế nội thất | 150.000 | Bản vẽ 3D chi tiết từng phòng. |
| Thi công phần thô | 3.800.000 – 4.200.000 | Đã bao gồm nhân công và vật tư thô. |
| Thi công trọn gói | 6.500.000 – 8.500.000 | Chìa khóa trao tay (Tùy mức độ vật liệu). |
Ví dụ tính toán cho mẫu nhà ống 3 tầng hiện đại 100m² của anh Trực:
-
Tổng diện tích sàn: ~300m².
-
Chi phí thiết kế: 32.400.000 .
-
Chi phí xây dựng trọn gói: Khoảng 2 tỷ – 2.5 tỷ đồng (Mức vật liệu khá – tốt).
Lưu ý: Đơn giá có thể thay đổi tùy vào vị trí địa lý, thời điểm xây dựng và yêu cầu riêng của gia chủ.

6. Lời khuyên từ chuyên gia Techhome
Khi xây dựng mẫu nhà ống 3 tầng hiện đại, anh em đừng chỉ nhìn vào vẻ hào nhoáng bên ngoài. Hãy lưu ý 3 điều “xương máu” sau:
-
Đừng tiết kiệm tiền thiết kế: Một bộ hồ sơ chuẩn như của anh Trực sẽ giúp bạn quản lý được khối lượng vật tư, không bị phát sinh linh tinh khi thi công. “Sai một li, đi một đống tiền” đấy ạ!
-
Chú trọng thông gió: Nhà ống thường bị bí hai bên. Hãy yêu cầu kiến trúc sư thiết kế giếng trời hoặc ô thoáng ở giữa nhà. Mẫu nhà ống 3 tầng hiện đại mà không có ánh sáng tự nhiên thì chỉ là một cái “hộp bê tông” thôi.
-
Lựa chọn đơn vị uy tín: Hãy nhìn vào những gì Techhome làm – chúng tôi không chỉ vẽ, chúng tôi mang đến giải pháp sống.

7. Kết luận
Mẫu nhà ống 3 tầng hiện đại của anh Trực tại Ninh Bình là minh chứng cho việc: Không cần quá cầu kỳ, chỉ cần sự tinh tế trong đường nét và khoa học trong bố trí là bạn đã có một tổ ấm lý tưởng.
Nếu bạn đang nung nấu ý định xây nhà trong năm 2026 này, đừng ngần ngại liên hệ với Techhome. Chúng mình luôn sẵn sàng lắng nghe và hiện thực hóa ngôi nhà trong mơ của bạn với mức chi phí hợp lý nhất.
CÔNG TY CỔ PHẦN KIẾN TRÚC VÀ XÂY DỰNG TECHHOME
🏠 Website: https://nhadeptechhome.vn/
☎️ Hotline: 036.273.2222
📍 Địa chỉ: B1.1 LK18 Ô 3 – KĐT Thanh Hà – Cienco 5 – Thanh Oai- Hà Nội.
Cảm ơn các bạn đã theo dõi bài viết. Chúc bạn sớm có được căn nhà ưng ý!
