Khám Phá Mẫu Nhà Cấp 4 Mái Bằng Hiện Đại 90m2 Tại Nghệ An – Tối Ưu Công Năng & Chi Phí

Chào các bạn độc giả thân mến của Techhome.

Xây nhà là một trong những cột mốc quan trọng nhất của đời người, và mình hiểu rằng việc tìm kiếm một ý tưởng thiết kế vừa đẹp mắt, vừa tối ưu công năng lại vừa vặn với túi tiền luôn là một bài toán khiến nhiều gia đình trăn trở. Trong những năm gần đây, đặc biệt là thời điểm đầu năm 2026 này, xu hướng xây dựng mẫu nhà cấp 4 mái bằng đang trở thành một làn sóng mạnh mẽ ở cả thành thị lẫn nông thôn nhờ vẻ đẹp hiện đại, tinh tế và không bao giờ lỗi mốt.

Hôm nay, thông qua bài viết này, mình rất vinh dự được dẫn các bạn về thăm một công trình siêu ấn tượng mà Công ty Cổ phần Kiến trúc và Xây dựng Techhome vừa hoàn thiện hồ sơ thiết kế. Đây không chỉ là một ngôi nhà, mà còn là tâm huyết của cả đội ngũ kiến trúc sư nhằm mang đến một không gian sống hoàn hảo nhất. Nếu bạn đang tìm kiếm một thiết kế thanh lịch, trẻ trung thì chắc chắn mẫu nhà cấp 4 mái bằng này sẽ khiến bạn phải “yêu ngay từ cái nhìn đầu tiên”. Hãy cùng mình đi sâu vào từng ngóc ngách, từng chi tiết bản vẽ để khám phá xem tại sao thiết kế này lại thu hút đến vậy nhé!

Phối cảnh mặt tiền mẫu nhà cấp 4 mái bằng hiện đại, thiết kế cửa kính lớn đón sáng tự nhiên do Techhome thực hiện.
Phối cảnh mặt tiền mẫu nhà cấp 4 mái bằng hiện đại, thiết kế cửa kính lớn đón sáng tự nhiên do Techhome thực hiện.

1. Tổng quan thông tin dự án nhà cấp 4 mái bằng của gia đình anh Sơn

Trước khi đi sâu vào phân tích nét đẹp ngoại thất hay sự tài tình trong cách bố trí mặt bằng, chúng ta hãy cùng điểm qua một vài thông tin cơ bản nhất của dự án này. Việc nắm rõ các thông số sẽ giúp bạn dễ dàng hình dung và đối chiếu với diện tích khu đất nhà mình xem có phù hợp hay không.

Dưới đây là những thông tin chính thức được trích xuất từ hồ sơ kỹ thuật của công trình:

  • Chủ đầu tư của dự án : anh Sơn.

  • Công trình được thiết kế với mục đích làm nhà ở gia đình.

  • Địa điểm xây dựng dự án tọa lạc tại khu vực tỉnh Nghệ An.

  • Ngôi nhà sở hữu tổng diện tích sử dụng khoa học : 90.0m2.

  • Chiều cao tầng được thiết kế lên tới 3m9.

  • Đơn vị tư vấn và thiết kế : Công ty Cổ phần Kiến trúc và Xây dựng Techhome.

Sự lựa chọn xây dựng một không gian nhà cấp 4 mái bằng giúp gia đình anh Sơn tối ưu hóa được chi phí đầu tư ban đầu, đồng thời thời gian thi công cũng được rút ngắn đáng kể so với các mẫu nhà ống nhiều tầng hay nhà mái Thái phức tạp. Với sự dẫn dắt của KTS, công trình đã thực sự giải quyết trọn vẹn bài toán về một không gian sống chất lượng cao cho gia đình ở nông thôn.

Góc nghiêng nhà cấp 4 mái bằng


2. Phân tích kiến trúc ngoại thất của mẫu nhà cấp 4 mái bằng hiện đại

Ngay từ cái nhìn đầu tiên vào bản phối cảnh 3D, mặt tiền của ngôi nhà cấp 4 mái bằng gây ấn tượng mạnh mẽ bởi sự tối giản nhưng vô cùng sang trọng. Triết lý “Ít mà nhiều” được áp dụng triệt để. Toàn bộ khối nhà được bao phủ bởi tone màu trắng chủ đạo, mang lại cảm giác mở rộng không gian, sạch sẽ và cực kỳ thanh lịch. Màu trắng cũng là gam màu an toàn, không lo bị lỗi thời theo năm tháng.

Để tránh sự đơn điệu cho bức tường trắng, các kiến trúc sư của Techhome đã khéo léo tạo điểm nhấn bằng mảng tường ốp gạch/đá màu xám đen chạy dọc bên trái và các đường kẻ ron ngang nhẹ nhàng. Sự tương phản giữa sắc trắng tinh khôi và sắc xám đen mạnh mẽ tạo nên chiều sâu và sự vững chãi cho hình khối công trình. Hệ thống cửa chính là cửa nhôm kính Xingfa hệ 4 cánh mở quay, kết hợp cùng các vách kính lớn. Kính cường lực trong suốt không chỉ giúp mặt tiền trông hiện đại hơn mà còn đóng vai trò như một “chiếc phễu” đón trọn ánh sáng tự nhiên và gió trời vào không gian bên trong, giúp ngôi nhà luôn bừng sáng và tràn đầy sinh khí.

Một góc nhìn thú vị khác mà mình muốn bật mí với các bạn chính là phần mái. Nhìn từ mặt tiền, ai cũng sẽ nghĩ đây là một khối bê tông đổ bằng hoàn toàn. Tuy nhiên, khi nhìn từ góc chim bay, chúng ta có thể thấy rõ thủ pháp giấu mái là điểm cộng lớn nhất của thiết kế nhà cấp 4 mái bằng này.

Thực chất, phần thân chính của ngôi nhà được lợp bằng mái tôn sóng vuông (tôn lạnh chống nóng), có độ dốc nhẹ về phía sau để thoát nước nhanh chóng. Phần mái tôn này được che khuất hoàn toàn bởi hệ thống tường thu hồi xây cao xung quanh. Ở phía sau cùng của ngôi nhà là một sàn bê tông cốt thép bằng phẳng, được tận dụng làm nơi đặt bồn nước inox và máy nước nóng năng lượng mặt trời. Giải pháp “mái bằng giả” này vô cùng thông minh: nó vừa giữ được form dáng vuông vức, hiện đại và sang trọng của kiến trúc mặt tiền, lại vừa tiết kiệm được hàng chục triệu đồng chi phí đổ bê tông cốt thép toàn khối, đồng thời chống nóng và chống thấm cực kỳ hiệu quả cho thời tiết khắc nghiệt tại Nghệ An.

Góc nghiêng nhà cấp 4 mái bằng


3. Khám phá bản vẽ công năng nhà cấp 4 mái bằng diện tích 90m2

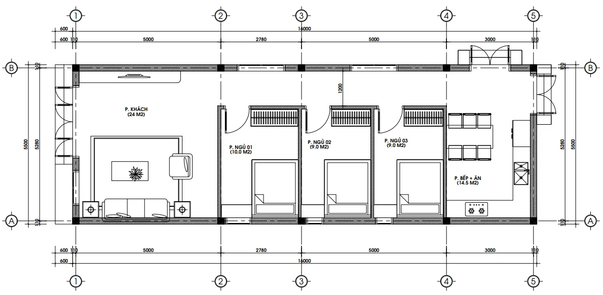
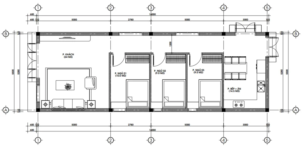
Đẹp ở vẻ bề ngoài là chưa đủ, giá trị cốt lõi của một tổ ấm nằm ở sự tiện nghi bên trong. Với chiều cao tầng lên đến 3m9, không gian bên trong nhà vô cùng cao ráo và thoáng đãng. Chiều dài mặt bằng lên tới 16m và chiều rộng tổng thể 5.5m được chia lô công năng vô cùng mạch lạc theo dạng nhà ống một tầng.

Bước qua sảnh chính của căn nhà cấp 4 mái bằng, bạn sẽ thấy ngay không gian sinh hoạt chung rộng rãi và ấm cúng nhất:

  • Đầu tiên là không gian phòng khách với diện tích 24 m2. Đây là không gian vuông vức, đủ lớn để gia chủ bố trí một bộ sofa chữ L hiện đại, kệ tivi và các vật dụng trang trí, là nơi lý tưởng để gia đình quây quần mỗi tối hoặc tiếp đón khách quý.

  • Tiếp nối theo chiều sâu của ngôi nhà là hệ thống 3 phòng ngủ được xếp dọc theo một hành lang giao thông rộng 1.2m (1200mm). Hành lang giao thông trong nhà cấp 4 mái bằng được bố trí dọc sát một bên tường, tạo sự liền mạch và đảm bảo tính riêng tư cho các phòng.

  • Phòng ngủ 01 có diện tích 10.0 m2, được đặt đầu tiên, rất thích hợp làm phòng ngủ Master cho vợ chồng anh Sơn.

  • Phòng ngủ 02 có diện tích 9.0 m2 và Phòng ngủ 03 cũng có diện tích 9.0 m2 nằm kế tiếp nhau, là không gian riêng tư tuyệt vời dành cho các con.

  • Cuối cùng là không gian phòng bếp + ăn rộng 14.5 m2. Việc đặt bếp ở cuối nhà giúp mùi thức ăn không bay ngược ra phòng khách, đồng thời dễ dàng kết nối với cửa hậu ra sân ướt phía sau để sơ chế đồ ăn sống.

Sự liền mạch đặc trưng của nhà cấp 4 mái bằng thể hiện ở việc mọi sinh hoạt của mọi thế hệ (từ người già đến trẻ nhỏ) đều diễn ra trên cùng một mặt phẳng. Không có sự chia cắt bởi cầu thang, giúp các thành viên trong gia đình luôn cảm thấy gần gũi, gắn kết với nhau hơn, đồng thời loại bỏ rủi ro vấp ngã cầu thang cho trẻ nhỏ.

Bản vẽ bố trí công năng mẫu nhà cấp 4 mái bằng diện tích 90m2 với 3 phòng ngủ tiện nghi của gia đình anh Sơn tại Nghệ An.
Bản vẽ bố trí công năng mẫu nhà cấp 4 mái bằng diện tích 90m2 với 3 phòng ngủ tiện nghi của gia đình anh Sơn tại Nghệ An.

4. Báo giá chi tiết chi phí xây dựng nhà cấp 4 mái bằng cập nhật 2026

Với vai trò là một chuyên gia đồng hành cùng các bạn, Tôi hiểu rằng sau khi ưng ý về thiết kế, câu hỏi lớn nhất luôn là: “Xây ngôi nhà này hết bao nhiêu tiền?”. Việc lên dự toán chính xác sẽ giúp bạn không bị “ngợp” tài chính khi công trình đang dang dở.

Để hoàn thiện một ngôi nhà cấp 4 mái bằng diện tích 90m2 như nhà anh Sơn với giải pháp giấu mái tôn, chi phí trong năm 2026 sẽ dao động ở mức vô cùng hợp lý. Mình sẽ bóc tách sơ bộ để các bạn dễ hình dung (lưu ý: giá cả có thể thay đổi tùy thuộc vào vị trí địa lý, giá vật tư tại thời điểm xây dựng và chủng loại vật liệu hoàn thiện mà gia chủ chọn):

  1. Chi phí xây dựng phần thô và nhân công hoàn thiện: Thường dao động từ 3.500.000 VNĐ đến 4.000.000 VNĐ/m2. Với diện tích 90m2 sàn + phần móng + phần mái tôn tính hệ số khoảng 30%, tổng diện tích xây dựng quy đổi khoảng 120m2. Chi phí phần thô rơi vào khoảng 420.000.000 VNĐ – 480.000.000 VNĐ.

  2. Chi phí vật tư hoàn thiện (Gạch ốp lát, sơn bả, thạch cao, thiết bị vệ sinh, hệ thống điện nước, cửa nhôm Xingfa): Dao động khoảng 2.000.000 VNĐ – 2.500.000 VNĐ/m2. Tổng chi phí hoàn thiện khoảng 240.000.000 VNĐ – 300.000.000 VNĐ.

  3. Nội thất cơ bản (Tủ bếp, giường, tủ quần áo, sofa – gỗ công nghiệp MDF chống ẩm): Khoảng 100.000.000 VNĐ – 150.000.000 VNĐ.

Tổng cộng, bạn hoàn toàn có thể sở hữu một căn nhà cấp 4 mái bằng chìa khóa trao tay với ngân sách dao động trong khoảng 750.000.000 VNĐ đến 900.000.000 VNĐ. Đây là một mức đầu tư cực kỳ xứng đáng cho một không gian sống hiện đại, bền bỉ và đầy đủ công năng cho gia đình từ 4-5 thành viên. Bí quyết để tối ưu tài chính khi xây nhà cấp 4 mái bằng chính là sử dụng mái tôn lợp giấu tường thay vì đổ bê tông toàn bộ mái, vừa nhẹ móng lại vừa tiết kiệm hàng chục triệu đồng tiền bê tông, cốt thép.

Lưu ý: Đây chỉ là mức chi phí ước tính. Để nhận được báo giá chính xác và chi tiết nhất cho công trình của bạn, vui lòng liên hệ trực tiếp với chúng tôi. Hoặc để tìm hiểu rõ hơn về tiêu chuẩn vật liệu xây dựng và các yếu tố ảnh hưởng đến chi phí, bạn có thể tham khảo thêm tại các bài viết chuyên sâu về vật liệu xây dựng cao cấp trên Wikipedia.

Phối cảnh từ trên cao mẫu nhà cấp 4 mái bằng sử dụng giải pháp lợp tôn giấu mái thông minh, giúp tiết kiệm chi phí.
Phối cảnh từ trên cao mẫu nhà cấp 4 mái bằng sử dụng giải pháp lợp tôn giấu mái thông minh, giúp tiết kiệm chi phí.

5. Góc chuyên gia: Bí quyết vàng khi thi công nhà cấp 4 mái bằng

Từ kinh nghiệm thực tế tư vấn và giám sát hàng trăm công trình tại Techhome, Tôi xin gửi tới các bạn một số lưu ý mang tính sống còn khi quyết định thi công mẫu nhà này:

  • Chú trọng hệ thống móng: Tuy là nhà cấp 4, tải trọng không lớn như nhà cao tầng, nhưng tại khu vực miền Trung như Nghệ An thường hay có mưa bão, bạn vẫn cần khảo sát địa chất kỹ lưỡng. Nếu nền đất yếu, cần phải gia cố bằng móng băng hoặc ép cọc tre/cọc bê tông để tránh hiện tượng sụt lún, nứt tường sau này.

  • Xử lý chống thấm và thoát nước mái: Đây là “tử huyệt” của các công trình mái bằng hoặc giấu mái. Đặc thù của nhà cấp 4 mái bằng là cần chú ý hệ thống thoát nước trên sê-nô (máng xối). Sê-nô bê tông cần được đánh dốc chuẩn, quét sika chống thấm ít nhất 3 lớp và có ống thoát nước đủ lớn (thường là ống PVC D90 hoặc D110) và trang bị phễu thu nước có cầu chắn rác để không bị tắc nghẽn khi lá cây rụng rụng vào mùa mưa.

  • Giải pháp chống nóng: Khí hậu gió Lào Nghệ An vào mùa hè vô cùng khắc nghiệt. Giải pháp chống nóng cho nhà cấp 4 mái bằng cũng vô cùng quan trọng. Bạn bắt buộc phải đóng trần thạch cao (chống nóng, tăng thẩm mỹ). Ngoài ra, khoảng không khí giữa lớp mái tôn dốc phía trên và trần thạch cao phía dưới chính là một lớp “đệm không khí” cách nhiệt tuyệt vời, giúp ngôi nhà luôn mát mẻ.

  • Lựa chọn vật liệu mặt tiền: Với tone màu trắng chủ đạo, bạn nên sử dụng sơn ngoại thất cao cấp có khả năng chống thấm, chống bám bụi và tự làm sạch khi trời mưa. Điều này sẽ giúp mặt tiền ngôi nhà luôn giữ được vẻ sáng mới qua nhiều năm tháng, không bị rêu mốc gây mất thẩm mỹ.

Tổng thể mặt sau nhà cấp 4 mái bằng


Ngôi nhà không chỉ là nơi che mưa che nắng, mà còn là tổ ấm để trở về sau những bão giông của cuộc đời. Một thiết kế chuẩn mực, khoa học sẽ nâng tầm chất lượng sống của gia đình bạn lên rất nhiều.

Qua bài phân tích chi tiết hồ sơ thiết kế công trình của gia đình anh Sơn tại Nghệ An, Techhome hy vọng bài viết về mẫu nhà cấp 4 mái bằng này đã giúp ích cho các bạn trong việc hình dung rõ hơn về ngôi nhà tương lai của mình. Nếu bạn đã trót say mê mẫu nhà cấp 4 mái bằng hiện đại, tinh tế và đầy đủ tiện nghi này, đừng ngần ngại nhấc máy lên.

CÔNG TY CỔ PHẦN KIẾN TRÚC VÀ XÂY DỰNG TECHHOME

🏠 Website: https://nhadeptechhome.vn/

☎️ Hotline: 036.273.2222

📍 Địa chỉ: B1.1 LK18 Ô 3 – KĐT Thanh Hà – Cienco 5 – Thanh Oai- Hà Nội.

Để lại một bình luận

Email của bạn sẽ không được hiển thị công khai. Các trường bắt buộc được đánh dấu *

    Vui lòng nhấn nút YÊU CẦU TƯ VẤN và đợi 1 - 2 giây đến khi thấy thông báo thành công

    YÊU CẦU TƯ VẤN