Nhiều người vẫn bảo, xây nhà là chuyện cả đời, nên ai cũng muốn cái gì đó thật “vừa vặn”: Vừa túi tiền, vừa thẩm mỹ mà lại vừa đủ công năng. Dự án mẫu nhà 2 tầng mái bằng hiện đại mà Techhome vừa bàn giao cho gia đình chị Oanh tại Đan Phượng, Hà Nội chính là một minh chứng điển hình cho sự “vừa vặn” tuyệt vời đó.
Nếu bạn đang sở hữu một mảnh đất phố hoặc đất vườn rộng rãi và yêu thích phong cách trẻ trung, đừng bỏ qua bài viết này. Chúng ta sẽ cùng giải mã xem tại sao ngôi nhà này lại khiến hàng xóm xung quanh phải “trầm trồ” đến thế!

1. Tổng quan kiến trúc: Hiện đại nhưng không “hào nhoáng”
Cái hay của mẫu nhà 2 tầng mái bằng hiện đại chính là những đường nét hình khối dứt khoát. Nhìn từ bên ngoài, ngôi nhà của chị Oanh toát lên vẻ vững chãi với các khối bê tông được sắp đặt một cách nghệ thuật.
-
Tông màu: Chúng mình tư vấn sử dụng gam màu trắng chủ đạo kết hợp với những mảng màu trung tính như xám và nâu đất nhạt. Sự phối hợp này không chỉ giúp ngôi nhà luôn trông như mới mà còn tạo cảm giác thư thái, dễ chịu mỗi khi trở về nhà.
-
Vật liệu: Điểm nhấn nằm ở hệ thống cửa nhôm kính cao cấp. Việc sử dụng kính cường lực bản lớn ở cả tầng 1 và tầng 2 giúp đón trọn ánh sáng tự nhiên, giúp không gian bên trong luôn thoáng đãng, thoát ly khỏi cảm giác bí bách của những ngôi nhà ống truyền thống.
-
Mái bằng: Đây là lựa chọn thông minh cho các gia chủ muốn tối ưu chi phí và công năng. Với hệ mái bằng này, chị Oanh hoàn toàn có thể tận dụng để đặt tép nước, hệ thống thái dương năng hoặc sau này có ý định lên thêm tầng cũng cực kỳ thuận tiện.

2. Chi tiết mặt bằng công năng: Bài toán “vàng” cho gia đình 2 – 3 thế hệ
Một ngôi nhà đẹp trước hết phải là một ngôi nhà tiện dụng. Với tổng diện tích xây dựng tầng 1 là 102m2 và tầng 2 là 90m2, đội ngũ kiến trúc sư Techhome đã bố trí các phòng chức năng cực kỳ khoa học.
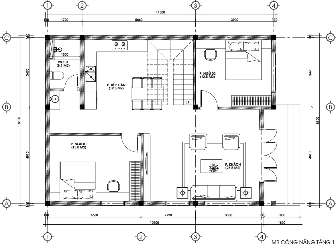
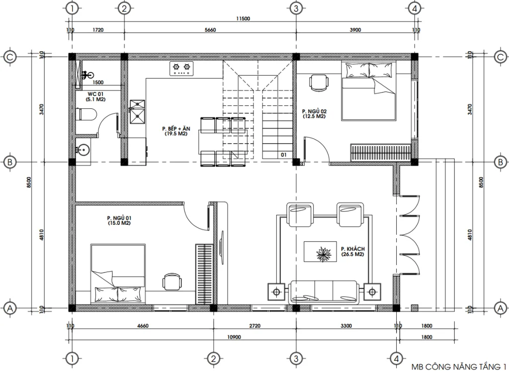
Tầng 1: Không gian sinh hoạt chung ấm cúng (102m2)
Bước qua sảnh chính là khu vực phòng khách rộng tới 26.5 m2. Đây là không gian “vàng” để cả gia đình quây quần hoặc tiếp đón bạn bè.
-
Phòng bếp + ăn (19.5 m2): Được ngăn cách tinh tế với phòng khách, tạo sự riêng tư nhưng vẫn đảm bảo sự thông suốt.
-
Phòng ngủ 01 (15.0 m2): Dành cho ông bà hoặc gia chủ , cực kỳ tiện lợi khi không phải leo cầu thang.
-
Phòng ngủ 02 (12.5 m2): Một không gian riêng tư khác được bố trí gọn gàng.
-
Vệ sinh chung (5.1 m2): Đủ rộng để lắp đặt các thiết bị vệ sinh hiện đại.
Cầu thang được thiết kế với 23 bậc, chiều cao bậc 169mm, đảm bảo đúng phong thủy “Sinh – Lão – Bệnh – Tử” và giúp việc di chuyển giữa các tầng không bị mỏi chân.

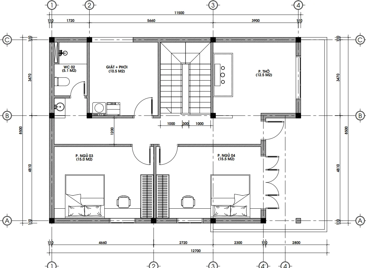
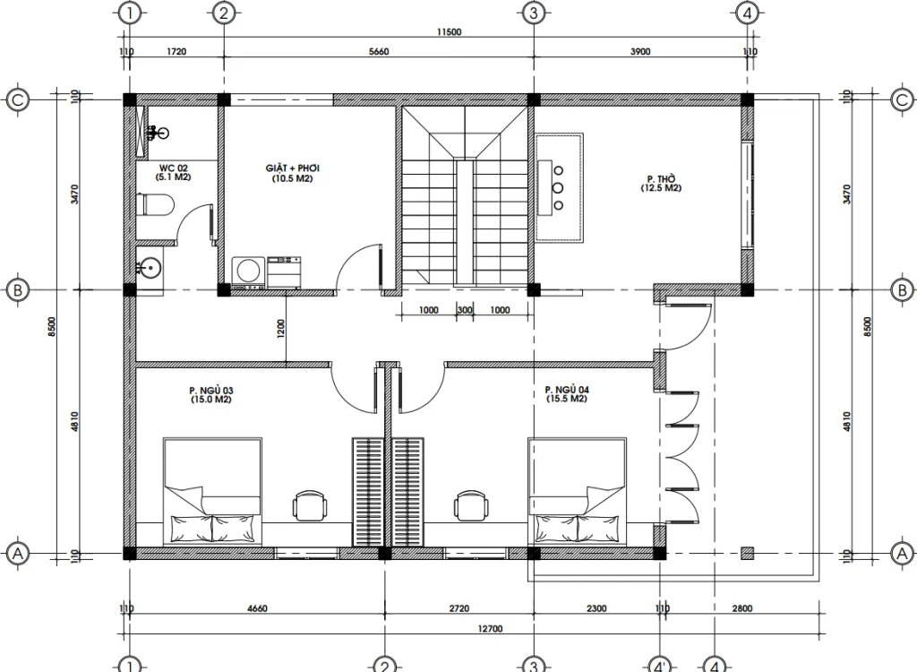
Tầng 2: Nơi nghỉ ngơi và tâm linh (90m2)
Nếu tầng 1 là nơi náo nhiệt thì tầng 2 của mẫu nhà 2 tầng mái bằng hiện đại này lại là chốn bình yên để nghỉ ngơi.
-
Phòng thờ (12.5 m2): Đặt ở vị trí trang trọng nhất, hướng ra mặt tiền, đảm bảo sự tôn nghiêm và thông thoáng.
-
Phòng ngủ 03 (15.0 m2) & Phòng ngủ 04 (15.5 m2): Hai phòng ngủ lớn dành cho con cái, đều có cửa sổ lớn đón gió.
-
Khu giặt phơi (10.5 m2): Được thiết kế kín đáo nhưng vẫn đảm bảo ánh nắng để quần áo luôn thơm tho.

3. Tại sao “Mẫu nhà 2 tầng mái bằng hiện đại” lại là xu hướng 2026?
Không phải ngẫu nhiên mà chị Oanh lại lựa chọn phương án thiết kế này. Theo kinh nghiệm của Techhome, mẫu nhà 2 tầng mái bằng hiện đại sở hữu 3 ưu điểm vượt trội:
-
Chống nóng, chống thấm cực tốt: Với công nghệ xây dựng hiện nay, các lớp sàn mái được xử lý chống thấm đa lớp và lát gạch chống nóng, xóa tan nỗi lo “mái bằng thì nóng”.
-
Tối ưu chi phí xây dựng: So với mái Thái hay mái Nhật cầu kỳ, mái bằng giúp gia chủ tiết kiệm được một khoản chi phí nhân công và vật liệu đáng kể.
-
Vẻ đẹp vượt thời gian: Sự tối giản luôn có sức sống lâu bền. 10 hay 20 năm nữa, ngôi nhà của bạn vẫn sẽ trông rất hiện đại và không bị lỗi mốt.

4. Báo giá thiết kế và thi công tham khảo
Tại Techhome, chúng mình luôn minh bạch về tài chính để các bác dễ dàng lên kế hoạch. Dưới đây là mức giá tham khảo cho mẫu nhà 2 tầng mái bằng hiện đại:
| Hạng mục | Đơn giá tham khảo (VNĐ/m2) | Ghi chú |
| Thiết kế kiến trúc | 108.000 | Bao gồm 3D, hồ sơ kỹ thuật, điện nước… |
| Thi công phần thô | 3.800.000 – 4.200.000 | Vật tư loại khá, nhân công tay nghề cao. |
| Thi công trọn gói | 6.500.000 – 7.500.000 | Chìa khóa trao tay, vào ở ngay. |
Lưu ý: Đây chỉ là mức chi phí ước tính. Để nhận được báo giá chính xác và chi tiết nhất cho công trình của bạn, vui lòng liên hệ trực tiếp với chúng tôi. Hoặc để tìm hiểu rõ hơn về tiêu chuẩn vật liệu xây dựng và các yếu tố ảnh hưởng đến chi phí, bạn có thể tham khảo thêm tại các bài viết chuyên sâu về vật liệu xây dựng cao cấp trên Wikipedia.

5. Cảm nhận của chủ đầu tư – Chị Oanh (Đan Phượng)
Chia sẻ với chúng mình trong ngày nhận hồ sơ thiết kế, chị Oanh cười bảo: “Lúc đầu chị cũng phân vân lắm, định làm mái Thái cho nó ‘oách’. Nhưng khi các bạn Techhome đưa bản vẽ mẫu nhà 2 tầng mái bằng hiện đại này ra, chị ưng luôn cái bụng. Nhà nhìn khỏe khoắn, lại có ban công rộng để chị trồng hoa, đúng cái gu ‘chill’ mà chị thích bấy lâu nay”.

6. Techhome – Kiến Tạo Không Gian, Dựng Xây Hạnh Phúc
Chúng mình không chỉ bán bản vẽ, chúng mình bán “giải pháp sống”. Mỗi mẫu nhà 2 tầng mái bằng hiện đại đều là kết quả của những giờ làm việc miệt mài, lắng nghe từng mong muốn nhỏ nhất của khách hàng.
Nếu bạn cũng đang muốn sở hữu một không gian sống “vạn người mê” như chị Oanh tại Đan Phượng, đừng ngần ngại nhấc máy lên và gọi cho Techhome nhé!
-
Website: https://nhadeptechhome.vn/
-
Hotline : 036.273.2222
-
Địa chỉ: B1.1 LK18 Ô 3 – KĐT Thanh Hà – Cienco 5 – Thanh Oai- Hà Nội.
Bạn có muốn nhận mẫu mặt bằng chi tiết cho mảnh đất của mình không? Để lại số điện thoại hoặc nhắn tin ngay cho Techhome nhé!
