Mẫu Thiết Kế Nhà 2 Tầng Hiện Đại Tại Thái Nguyên: Vẻ Đẹp Tiện Nghi Và Sang Trọng

Trong bối cảnh quỹ đất ngày càng hạn hẹp tại các đô thị và khu dân cư phát triển, việc tìm kiếm một giải pháp kiến trúc vừa đảm bảo công năng sử dụng, vừa mang tính thẩm mỹ cao là bài toán khó với nhiều gia chủ. Hôm nay, TechHome xin trân trọng giới thiệu đến quý khách hàng một dự án tiêu biểu mà chúng tôi vừa hoàn thiện hồ sơ kỹ thuật thi công: Dự án nhà ở gia đình của anh Hải tại Thái Nguyên. Đây là minh chứng rõ nét cho xu hướng thiết kế nhà 2 tầng hiện đại, tối ưu hóa không gian sống cho gia đình Việt.

1. Tổng quan về dự án thiết kế nhà 2 tầng hiện đại của anh Hải

Trước khi đi sâu vào chi tiết bản vẽ, hãy cùng điểm qua những thông tin cơ bản nhất của dự án này. Được xây dựng trên mảnh đất có kích thước tiêu chuẩn của nhà phố (khoảng 5m x 15m), ngôi nhà được định hướng theo phong cách hiện đại, trẻ trung nhưng không kém phần vững chãi.

  • Chủ đầu tư: Anh Hải

  • Địa điểm xây dựng: Thái Nguyên

  • Đơn vị tư vấn thiết kế: Công ty Cổ phần Kiến trúc và Xây dựng TechHome

  • Hạng mục: Kiến trúc nhà ở gia đình

  • Phong cách: Thiết kế nhà 2 tầng hiện đại mái bằng kết hợp hệ lam trang trí.

Với diện tích xây dựng khoảng 75-80m2/sàn, các kiến trúc sư của TechHome đã khéo léo bố trí công năng để đáp ứng nhu cầu sinh hoạt của gia đình từ 4-5 thành viên. Điểm nhấn của thiết kế nhà 2 tầng hiện đại này nằm ở sự liên kết mạch lạc giữa các không gian chức năng và việc tận dụng tối đa ánh sáng tự nhiên thông qua hệ thống cửa nhôm kính lớn.

thiết kế nhà 2 tầng hiện đại

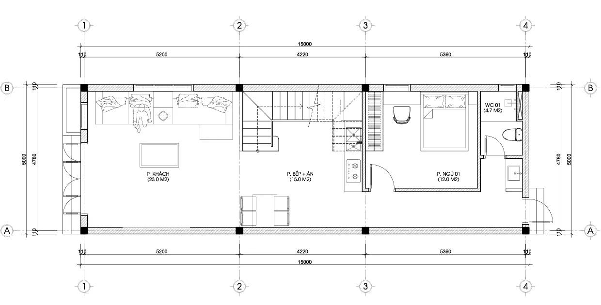
2. Phân tích chi tiết công năng tầng 1: Sự kết nối không gian mở

Trong các thiết kế nhà 2 tầng hiện đại, tầng 1 thường được ưu tiên cho các không gian sinh hoạt chung. Nhìn vào bản vẽ mặt bằng công năng tầng 1, chúng ta thấy sự sắp xếp khoa học theo trục dọc của ngôi nhà.

Phòng khách – Bộ mặt của ngôi nhà

Bước qua sảnh chính là không gian phòng khách rộng rãi với diện tích 23m2. Đây là kích thước lý tưởng cho một phòng khách nhà ống, đủ để bố trí bộ sofa sang trọng, kệ tivi và các vật dụng trang trí. Với chiều ngang nhà khoảng 5m, phòng khách tạo cảm giác thoáng đãng, không bị gò bó.

Bếp và phòng ăn liên thông

Tiếp nối phòng khách là khu vực cầu thang đóng vai trò như một vách ngăn ước lệ, dẫn vào không gian Bếp + Ăn rộng 15m2. Xu hướng thiết kế nhà 2 tầng hiện đại ngày nay thường loại bỏ các vách ngăn cứng nhắc giữa khách và bếp để tạo sự liền mạch. Hệ tủ bếp chữ L bám sát tường giúp tối ưu diện tích di chuyển cho người nội trợ.

Phòng ngủ tầng 1 – Sự tinh tế trong thiết kế

Một điểm cộng lớn của bản vẽ này là việc bố trí được một phòng ngủ (Phòng ngủ 01) diện tích 12m2 ngay tại tầng 1. Đây là giải pháp cực kỳ hữu ích cho gia đình có người lớn tuổi không tiện leo cầu thang. Cạnh đó là WC 01 (4.7m2) được đặt ở vị trí kín đáo, thuận tiện cho cả khách và người sử dụng phòng ngủ tầng dưới.

Việc bố trí công năng như vậy chứng tỏ tư duy thiết kế nhà 2 tầng hiện đại của TechHome luôn đặt trải nghiệm người dùng lên hàng đầu.

mặt bằng thiết kế nhà 2 tầng hiện đại

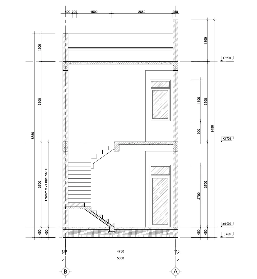
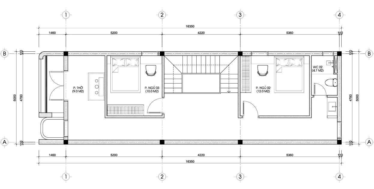
3. Mặt bằng tầng 2: Không gian nghỉ ngơi và tâm linh

Di chuyển lên tầng 2 thông qua cầu thang 21 bậc (theo tiêu chuẩn phong thủy Sinh – Lão – Bệnh – Tử), chúng ta tiếp cận không gian riêng tư hơn của gia đình.

Phòng thờ trang nghiêm

Trong văn hóa người Việt, phòng thờ luôn được đặt ở vị trí trang trọng nhất. Tại dự án này, Phòng thờ (9m2) được đặt ở phía trước nhà, hướng ra ban công. Vị trí này không chỉ đảm bảo sự thông thoáng, đón gió và ánh sáng tốt mà còn hợp phong thủy, mang lại vượng khí cho gia chủ. Đây là yếu tố không thể thiếu trong một bản vẽ thiết kế nhà 2 tầng hiện đại hoàn chỉnh tại Việt Nam.

Hệ thống phòng ngủ tiện nghi

Tầng 2 bao gồm 02 phòng ngủ:

  • Phòng ngủ 02: Diện tích 12m2.

  • Phòng ngủ 03: Diện tích 10m2.

Hai phòng ngủ này sử dụng chung một nhà vệ sinh (WC 02 – 4.7m2) nằm ở trục cuối nhà, đồng trục với vệ sinh tầng 1 để thuận tiện cho việc đi đường ống kỹ thuật nước (hộp gen). Cách bố trí này giúp tiết kiệm chi phí thi công và dễ dàng bảo trì sau này – một đặc điểm kỹ thuật quan trọng trong thiết kế nhà 2 tầng hiện đại.

mặt bằng thiết kế nhà 2 tầng hiện đại

4. Giải pháp kỹ thuật và vật liệu trong thiết kế

Để hiện thực hóa một bản vẽ thiết kế nhà 2 tầng hiện đại đẹp mắt thành ngôi nhà bền vững, TechHome đã đưa ra các chỉ định kỹ thuật rất chi tiết trong hồ sơ.

Hệ thống cửa – Nhôm hệ kính an toàn

Nhìn vào bảng thống kê cửa, toàn bộ hệ thống cửa đi và cửa sổ đều sử dụng nhôm hệ kết hợp kính an toàn dày 6.38mm đến 8.38mm.

  • Ưu điểm: Vật liệu này đặc trưng cho phong cách thiết kế nhà 2 tầng hiện đại, giúp lấy sáng tối đa, cách âm, cách nhiệt tốt và không bị cong vênh dưới thời tiết khắc nghiệt của miền Bắc.

  • Chi tiết: Cửa chính 4 cánh rộng mở ra không gian mặt tiền, trong khi các cửa sổ sử dụng chấn song thép sơn tĩnh điện bên trong để đảm bảo an ninh.

Trần thạch cao và hệ thống chiếu sáng

Bản vẽ mặt bằng trần đèn cho thấy sự đầu tư kỹ lưỡng về thẩm mỹ nội thất. TechHome sử dụng trần thạch cao khung xương chìm, kết hợp với đèn LED downlight âm trần và đèn hắt khe rèm.

  • Tại phòng khách và bếp: Sử dụng trần giật cấp để tạo điểm nhấn và tăng chiều sâu cho không gian.

  • Hệ thống ánh sáng được tính toán kỹ lưỡng, đảm bảo độ rọi tiêu chuẩn cho từng khu vực chức năng, làm tôn lên vẻ đẹp của thiết kế nhà 2 tầng hiện đại.

Lát sàn và ốp lát vệ sinh

Vật liệu sàn cũng được quy định rõ ràng:

  • Sàn tầng 1 & 2: Sử dụng gạch Granite hoặc Ceramic kích thước lớn (800×800 hoặc 600×600) tạo cảm giác rộng rãi.

  • Cầu thang: Mặt bậc ốp đá Granite tự nhiên, cổ bậc đá trắng, tạo sự tương phản sang trọng.

  • Nhà vệ sinh: Sử dụng gạch chống trơn trượt (300×300), tường ốp gạch men cao kịch trần giúp không gian luôn sạch sẽ, khô thoáng.

thiết kế nhà 2 tầng hiện đại

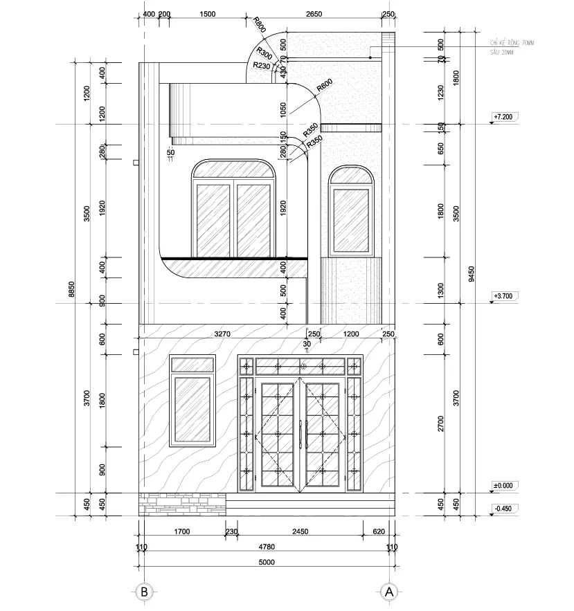
5. Kiến trúc mặt đứng: Vẻ đẹp hình khối vững chãi

Mặt đứng trục A-B và các mặt cắt thể hiện rõ ngôn ngữ kiến trúc của ngôi nhà. Thiết kế nhà 2 tầng hiện đại của anh Hải không sử dụng các phào chỉ rườm rà của phong cách cổ điển. Thay vào đó là các mảng khối vuông vức, các đường kẻ chỉ lõm trên tường tạo điểm nhấn thị giác.

Màu sơn ngoại thất chủ đạo là màu trắng sứ, kết hợp với màu ghi của hệ cửa nhôm và màu của gạch thẻ ốp trang trí mặt tiền. Phần mái có độ dốc thu nước về sê-nô, đảm bảo thoát nước mưa nhanh chóng, chống thấm dột hiệu quả cho công trình.

6. Tại sao nên chọn TechHome cho ngôi nhà mơ ước?

Qua hồ sơ thiết kế nhà anh Hải, có thể thấy TechHome không chỉ cung cấp một bản vẽ, mà chúng tôi cung cấp một giải pháp sống toàn diện. Một hồ sơ thiết kế nhà 2 tầng hiện đại đạt chuẩn của chúng tôi bao gồm hàng chục bản vẽ từ kiến trúc, kết cấu đến điện nước , đảm bảo thợ thi công có thể thực hiện chính xác đến từng milimet.

Những lý do bạn nên cân nhắc chọn TechHome:

  1. Hồ sơ chi tiết: Từ mặt bằng định vị, mặt bằng lát sàn, chi tiết cửa, chi tiết vệ sinh đến chi tiết cầu thang đều được thể hiện rõ ràng.

  2. Tối ưu chi phí: Thiết kế nhà 2 tầng hiện đại giúp loại bỏ các chi tiết thừa, tập trung vào công năng, giúp gia chủ tiết kiệm chi phí vật liệu và nhân công.

  3. Hỗ trợ kỹ thuật: chúng tôi luôn có đường dây nóng hỗ trợ kỹ thuật xây dựng (0364.042.222) để giải đáp mọi thắc mắc trong quá trình thi công.

  4. Phong thủy ứng dụng: Các yếu tố về hướng bếp, hướng bàn thờ, số bậc cầu thang đều được các KTS tính toán dựa trên tuổi của gia chủ.

7. Kinh nghiệm xây dựng nhà 2 tầng hiện đại từ dự án thực tế

Từ dự án của anh Hải tại Thái Nguyên, TechHome muốn chia sẻ một vài kinh nghiệm cho các gia chủ đang có ý định xây dựng thiết kế nhà 2 tầng hiện đại:

  • Chú trọng vào giếng trời/thông tầng: Với nhà ống, việc lưu thông không khí là rất quan trọng. Khu vực cầu thang nên được thiết kế rộng rãi, có thể kết hợp giếng trời để lấy sáng cho hành lang các tầng.

  • Lựa chọn vật liệu hoàn thiện thông minh: Không cần dùng vật liệu quá đắt tiền, quan trọng là sự phối màu và độ bền. Ví dụ, thay vì dùng gỗ tự nhiên cho cửa sổ (dễ co ngót), hãy dùng nhôm hệ vân gỗ vừa bền vừa thẩm mỹ đúng chất thiết kế nhà 2 tầng hiện đại.

  • Tuân thủ bản vẽ thiết kế: Để ngôi nhà đạt được vẻ đẹp và độ bền như mong muốn, việc tuân thủ các thông số kỹ thuật trong hồ sơ thiết kế là bắt buộc. Việc thay đổi tùy tiện ngoài công trường thường dẫn đến các lỗi về kết cấu hoặc thẩm mỹ không đáng có.

Kết luận

Mẫu nhà của anh Hải tại Thái Nguyên là một ví dụ điển hình cho xu hướng thiết kế nhà 2 tầng hiện đại: Đơn giản, Tiện nghi và Tinh tế. Với sự bố trí công năng thông minh (3 phòng ngủ, 1 phòng thờ, khách bếp liên thông) trên diện tích đất tiêu chuẩn, đây là mẫu nhà lý tưởng cho các gia đình trẻ hoặc gia đình 2 thế hệ.

Nếu bạn đang ấp ủ dự định xây dựng tổ ấm và yêu thích phong cách thiết kế nhà 2 tầng hiện đại, hãy để TechHome đồng hành cùng bạn. Với đội ngũ kiến trúc sư, kỹ sư giàu kinh nghiệm và tâm huyết, chúng tôi cam kết mang đến những không gian sống chất lượng, bền vững với thời gian.

Hãy liên hệ ngay với TechHome để được tư vấn miễn phí và nhận báo giá ưu đãi nhất cho dịch vụ thiết kế nhà 2 tầng hiện đại.


CÔNG TY CỔ PHẦN KIẾN TRÚC VÀ XÂY DỰNG TECHHOME

Để lại một bình luận

Email của bạn sẽ không được hiển thị công khai. Các trường bắt buộc được đánh dấu *

    Vui lòng nhấn nút YÊU CẦU TƯ VẤN và đợi 1 - 2 giây đến khi thấy thông báo thành công

    YÊU CẦU TƯ VẤN